The Acorn Group is London’s largest multi-brand estate agency. We offer our clients the best brands, with the best people, in the best locations.

 

Close

Offers Over £825,000 freehold

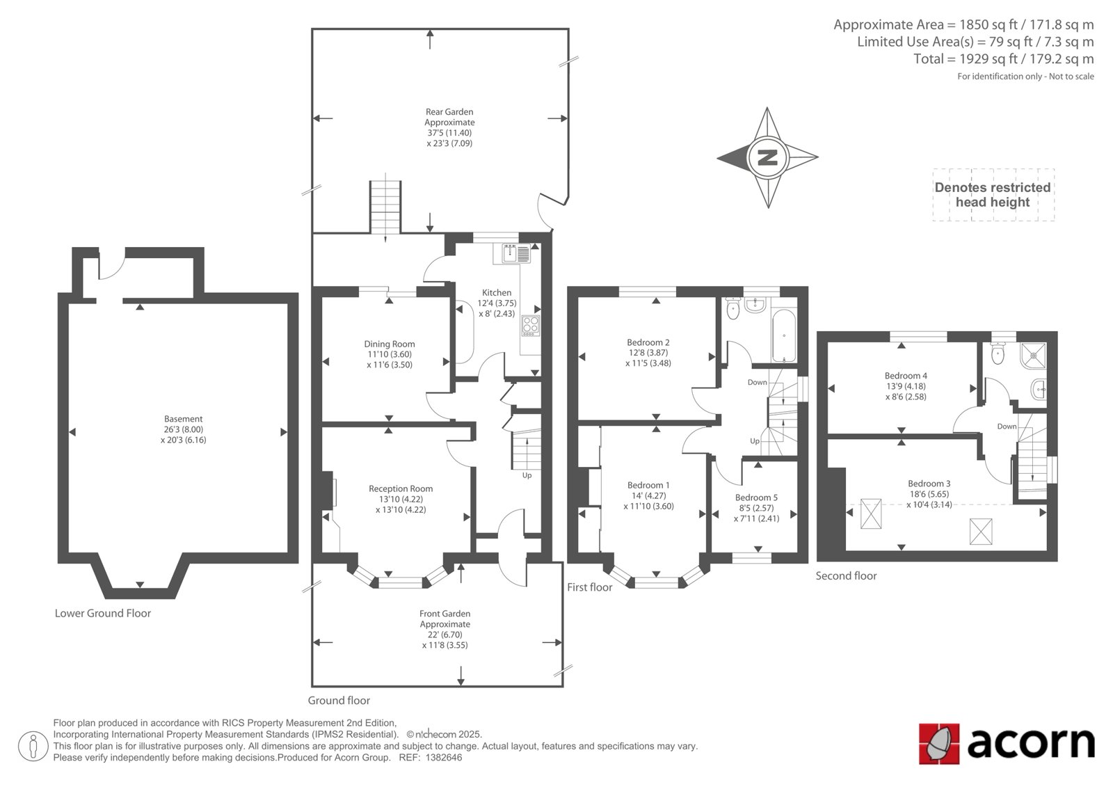
Semi-detached House for sale - Vicars Hill, SE13

Acorn are thrilled to welcome to the market this substantial Semi Detached family home, enviably located for access to ample transport links and local amenities.

Within walking distance of Hilly Fields and Ladywell Station, the property is offered to the market with no onward chain.

Arranged over three floors, the ground floor comprises spacious front lounge, separate dining room with raised garden views, and an extended kitchen with ample fitted units. The first floor offers three well-proportioned bedrooms and family bathroom. The second floor, loft conversion, boasts two further bedrooms and shower room.

Externally this bright home boasts a good size South facing rear garden, and also offers a large basement area that could offer future living space subject to relevant permissions.

Tenure – Freehold
Energy Efficiency Rating D
Council Tax Band E

Talk to Max Smith from Acorn (Estate agents in Lewisham)

 

Use our calculator to work out potential mortgage repayments and stamp duty costs. Please note, these calculators are for general interest only and must not be relied on. Speak to our Mortgage Scout team for further information and advice. 

Powered by

Total Mortgage

£

Estimated Monthly Mortgage Payment

£

  • Powered by

Lewisham Area Guide

Explore the areas we serve – from parks, entertainment and transport links, to shopping, eating and drinking.

Dive into property knowledge

Visit the AcornIntel knowledge-base, our library of articles to help you make sense of all things property, or send your questions to our panel of property experts.

Get your property valued

Looking to sell or let your property? Get a free property valuation from one of our experts.

Top