The Acorn Group is London’s largest multi-brand estate agency. We offer our clients the best brands, with the best people, in the best locations.

 

Close

Asking price £850,000 freehold

Semi-detached House for sale - Upwood Road, SE12

A spacious three bedroom semi detached family home requiring modernisation and offering potential to be extended to create a bespoke family home, subject to the relevant permissions. Situated in in this prestigious road close to Lee train station, Colfes school and local shops.

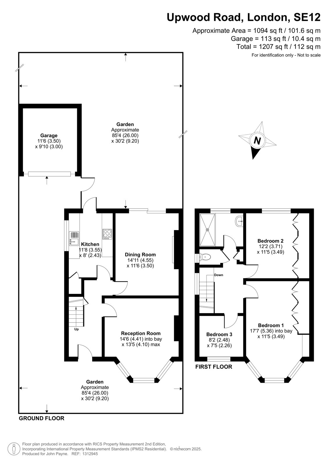
Accommodation briefly comprises entrance hall, lounge with doors leading to the south facing garden, dining room andseparate kitchen. On the first floor there are three bedrooms, wet room and separate WC. Externally there is a detached single garage and driveway. The south facing rear garden measures approximately 85 ft.

Both Lee and Hither Green train stations are within easy reach and offer regular services to London Bridge, Charing Cross and Cannon Street and there are several outstanding primary schools, parks, shops and restaurants close by. Blackheath Village is within a mile distance and has a wide range of boutique shops, bars and restaurants.

London Borough of Lewisham - Council Tax Band - E
Energy Effiicency Rating - D

Talk to Chris Wadeson from John Payne (Estate agents in Lee)

 

Use our calculator to work out potential mortgage repayments and stamp duty costs. Please note, these calculators are for general interest only and must not be relied on. Speak to our Mortgage Scout team for further information and advice. 

Powered by

Total Mortgage

£

Estimated Monthly Mortgage Payment

£

  • Powered by

Lee Area Guide

Explore the areas we serve – from parks, entertainment and transport links, to shopping, eating and drinking.

Dive into property knowledge

Visit the AcornIntel knowledge-base, our library of articles to help you make sense of all things property, or send your questions to our panel of property experts.

Get your property valued

Looking to sell or let your property? Get a free property valuation from one of our experts.

Top