The Acorn Group is London’s largest multi-brand estate agency. We offer our clients the best brands, with the best people, in the best locations.

 

Close

Asking price £450,000 freehold

Semi-detached House for sale - Tower Road, DA17

Set within a modern and well-regarded development, this extended family home offers a clean, contemporary feel paired with a genuine sense of community.

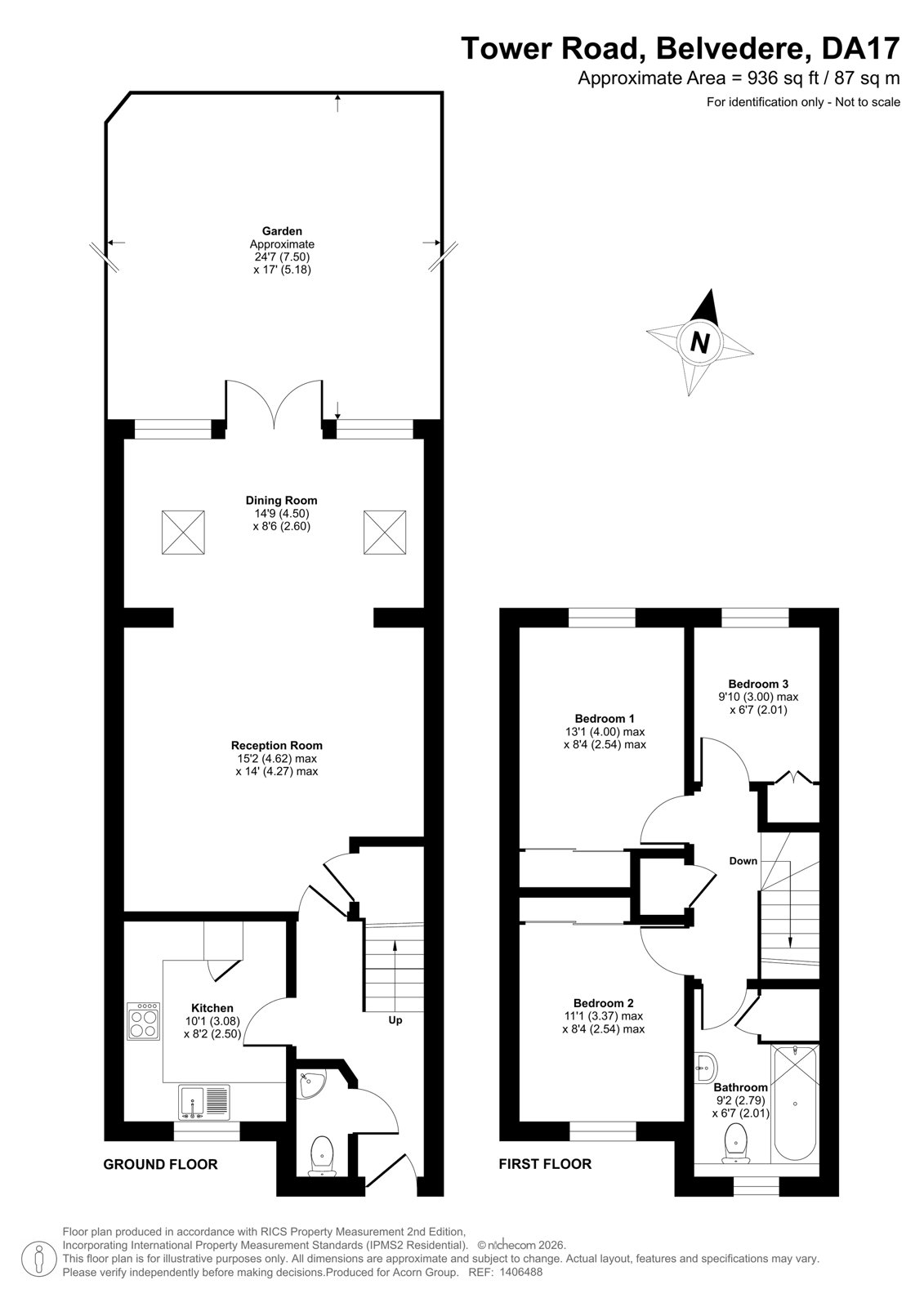
The ground floor is arranged intelligently, with a well-proportioned kitchen positioned to work for everyday family life. It is practical, well laid out and connected naturally to the rest of the home, making it ideal for busy mornings and relaxed evenings alike. The main reception space flows through to an extended dining area that forms the heart of the house, opening onto the garden and creating an easy, social layout. A downstairs WC adds everyday convenience and reinforces the thought put into the design.

Upstairs, the finish remains consistent and well considered. The family bathroom has been upgraded with stylish tiling, while oak flooring across the landing adds warmth and a sense of quality. The bedrooms are well balanced and versatile, suited to growing families, home working or guest space, and the house enjoys a good level of privacy with no direct overlooking.

Outside, the garden feels private and usable rather than exposed, and allocated parking removes a common frustration. The wider setting is a key part of the appeal. Green spaces, parks and well-regarded schools are all close by, creating a strong family-focused environment that buyers actively seek out.

Connectivity is excellent. Road links including the A2 offer straightforward access into Kent and beyond, while nearby stations provide an easy commute into London, including fast services via Abbey Wood and the Elizabeth line. It is a location that supports modern working life without compromising on a calm residential feel.

This is a well maintained, modern home that delivers on layout, lifestyle and location. Sensibly extended, well located and easy to live in, it will appeal to buyers looking for a long term move rather than a stepping stone.

Tenure – Freehold | Council Tax Band - D

Talk to Arikson Franco from Acorn (Estate agents in Belvedere)

 

Use our calculator to work out potential mortgage repayments and stamp duty costs. Please note, these calculators are for general interest only and must not be relied on. Speak to our Mortgage Scout team for further information and advice. 

Powered by

Total Mortgage

£

Estimated Monthly Mortgage Payment

£

  • Powered by

Belvedere Area Guide

Explore the areas we serve – from parks, entertainment and transport links, to shopping, eating and drinking.

Dive into property knowledge

Visit the AcornIntel knowledge-base, our library of articles to help you make sense of all things property, or send your questions to our panel of property experts.

Get your property valued

Looking to sell or let your property? Get a free property valuation from one of our experts.

Top