The Acorn Group is London’s largest multi-brand estate agency. We offer our clients the best brands, with the best people, in the best locations.

 

Close

OIEO £650,000 freehold

Semi-detached House for sale - Sidcup Road, SE12

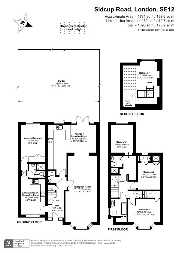
A spacious 1930’s, extended four/five bedroom, semi detached family home benefiting from a garage conversion creating a granny annexe. Situated within easy reach of both Lee and Kidbrooke train stations and just a short walk to Sutcliffe Park Sports Centre and nature reserve.

Accommodation measures approximately 1900 sq ft and briefly comprises entrance hall, downstairs WC, through reception room, spacious open plan fitted kitchen/breakfast room, granny annexe with bedroom, shower room and kitchen/reception area. To the first floor there are three bedrooms, family bathroom and a separate WC. The loft has been converted to create another double bedroom. Externally there is a good size rear garden and ample off street parking to the front.

Conveniently located for major bus routes and the popular Blackheath Village. Kidbrooke, Lee and Eltham train stations are approximately within one mile radius. With good schools such as The Church Of England School, The Harris Academy and Thomas Tallis Schools all within walking distance and also handy for the highly regarded Colfe's School and Eltham College.

Energy Efficiency Rating D.

Council Tax - Local Authority The Royal Borough of Greenwich- Band D.

Talk to Chris Wadeson from John Payne (Estate agents in Lee)

 

Use our calculator to work out potential mortgage repayments and stamp duty costs. Please note, these calculators are for general interest only and must not be relied on. Speak to our Mortgage Scout team for further information and advice. 

Powered by

Total Mortgage

£

Estimated Monthly Mortgage Payment

£

  • Powered by

Lee Area Guide

Explore the areas we serve – from parks, entertainment and transport links, to shopping, eating and drinking.

Dive into property knowledge

Visit the AcornIntel knowledge-base, our library of articles to help you make sense of all things property, or send your questions to our panel of property experts.

Get your property valued

Looking to sell or let your property? Get a free property valuation from one of our experts.

Top