The Acorn Group is London’s largest multi-brand estate agency. We offer our clients the best brands, with the best people, in the best locations.

 

Close

Asking price £1,250,000 freehold

Semi-detached House for sale - Sandhurst Road, DA15

Langford Russell are delighted to present this beautifully finished Four/Five Bedroom Semi Detached home, offering a perfect blend of contemporary design and spacious family living.

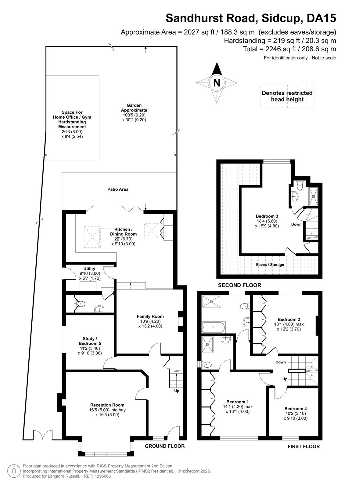
The accommodation comprises four superb sized bedrooms; the master benefitting from built in wardrobes and an en-suite, a bright and airy loft conversion completed with an en-suite and built-in eaves storage. There is a third bedroom with built in wardrobes and a further fourth. There is also a large four-piece family bathroom.

On the ground floor, the property is fitted with a high specification kitchen/diner with premium appliances, including Quooker tap, and stylish finishes. The property also benefits from a study room/extra bedroom. Bi-fold doors off the kitchen open seamlessly onto the rear garden, creating the perfect indoor-outdoor flow. The garden and large patio area is ideal for entertaining, family activities, or simply relaxing in a tranquil setting, and has space for a garage/gym/home office. The property also has a utility room, fitted with brand new white goods, and a downstairs W/C/Cloakroom conveniently located off the kitchen/diner.

The property has been completely refurbished throughout, with brand new fixtures and fittings and delivers comfort, style and practically. The quality craftsmanship and attention to detail are evident in every room, while the layout caters to entertaining and everyday family life.

Superbly located, the property is just a short stroll from Sidcup Station, providing swift services into London Bridge and Charing Cross. Sidcup High Street is also within easy reach, offering a variety of shops, cafés, restaurants, and everyday amenities. Families will appreciate the outstanding local schools, serving both primary and secondary levels.

This impressive home represents a rare opportunity to secure a landmark property in one of Sidcup’s most exclusive settings — offered to the market with no onward chain.

London Borough of Bexley - Council Tax Band - F
Energy Efficiency Rating - D

Talk to Jack Power from Langford Russell (Estate agents in Sidcup)

 

Use our calculator to work out potential mortgage repayments and stamp duty costs. Please note, these calculators are for general interest only and must not be relied on. Speak to our Mortgage Scout team for further information and advice. 

Powered by

Total Mortgage

£

Estimated Monthly Mortgage Payment

£

  • Powered by

Sidcup Area Guide

Explore the areas we serve – from parks, entertainment and transport links, to shopping, eating and drinking.

Dive into property knowledge

Visit the AcornIntel knowledge-base, our library of articles to help you make sense of all things property, or send your questions to our panel of property experts.

Get your property valued

Looking to sell or let your property? Get a free property valuation from one of our experts.

Top