The Acorn Group is London’s largest multi-brand estate agency. We offer our clients the best brands, with the best people, in the best locations.

 

Close

Asking price £450,000 freehold

Semi-detached House - Roberts Road, DA17

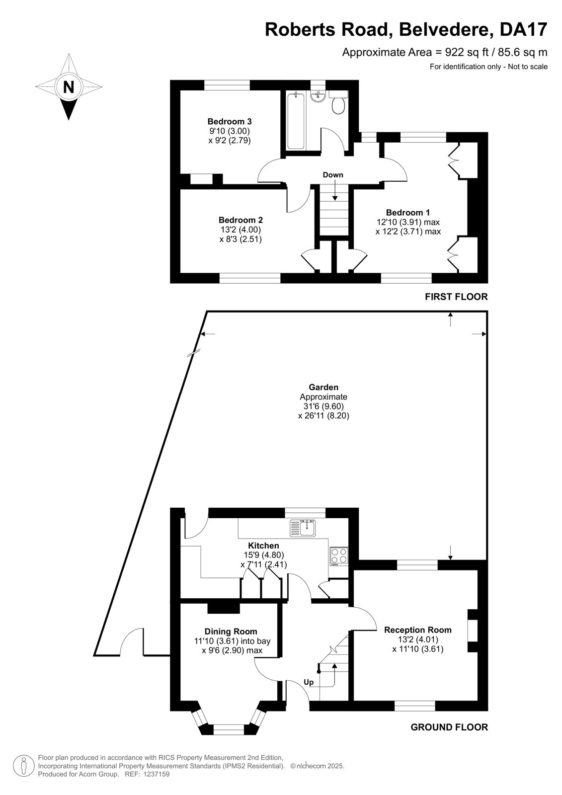
A well-presented, double-fronted family home located near Nuxley Village within a quiet residential road. The accommodation offers an impressive 922sqft of floorspace internally with a side plot to the front garden providing off-street parking for three cars, and access to the rear of the property. As you enter, you'll notice a bright and broad hallway which firstly leads into a separate dining room to the left. This room has a charming bay window and bespoke shelving on either side of the chimney, there's further potential (subject to approval) to knock through into the kitchen behind to create a lovely kitchen-diner! The kitchen is a great size, smartly designed with some integrated appliances, matching wall-hung units and has plenty of worktop space. The reception room is a nice square shape with a dual aspect providing lots of natural light from both sides and has a charming feature fireplace. The garden faces most people's favourites direction, yes, it is South-Facing and a suntrap throughout the day! The garden is landscaped with a separate lawn and patio section making it easier to maintain; There is an additional section to the side of the house also paved, which the owners mentioned is a nice more shaded area and an ideal space for outdoor furniture to enjoy some summer parties and barbecues. Upstairs has a more traditional layout with access to three double bedrooms which are all similar in size, two of the rooms benefit from built in storage. The family bathroom suite is also nicely decorated and complimented with tiled walls. This home offers further potential to be extended at the back (STPP) to create even more space internally. Additional benefits include gas central heating, double glazing, and off-street parking.

Roberts Road is superbly located with plenty of local amenities nearby and a great choice of schools! Nuxley Village nearby offers a range of shops which includes coffee shops, cafes, boutique stores, takeaways, and a local Co-op. There are some lovely parks to enjoy nearby with Belvedere Beach & Recreation Grounds, Frank’s Park or Lesnes Abbey Woods which host events and has interesting history of being an important site for early Tertiary fossils. For commuters, Belvedere is 0.7m walk which operates the Southeastern Line into London Bridge and is one stop away from Abbey Wood with the new Elizabeth Line which has even more options into the city, fast and frequently!

We expect this house to be a popular choice, please give us a call to arrange a viewing or ask any questions.

London Borough of Bexley - Council Tax Band - C
Energy Efficiency Rating - D

Talk to Arikson Franco from Acorn (Estate agents in Belvedere)

 

Use our calculator to work out potential mortgage repayments and stamp duty costs. Please note, these calculators are for general interest only and must not be relied on. Speak to our Mortgage Scout team for further information and advice. 

Powered by

Total Mortgage

£

Estimated Monthly Mortgage Payment

£

  • Powered by

Belvedere Area Guide

Explore the areas we serve – from parks, entertainment and transport links, to shopping, eating and drinking.

Dive into property knowledge

Visit the AcornIntel knowledge-base, our library of articles to help you make sense of all things property, or send your questions to our panel of property experts.

Get your property valued

Looking to sell or let your property? Get a free property valuation from one of our experts.

Top