The Acorn Group is London’s largest multi-brand estate agency. We offer our clients the best brands, with the best people, in the best locations.

 

Close

Guide price £550,000 freehold

Semi-detached House - Repton Road, BR6

**Guide Price £550,000 to £575,000**

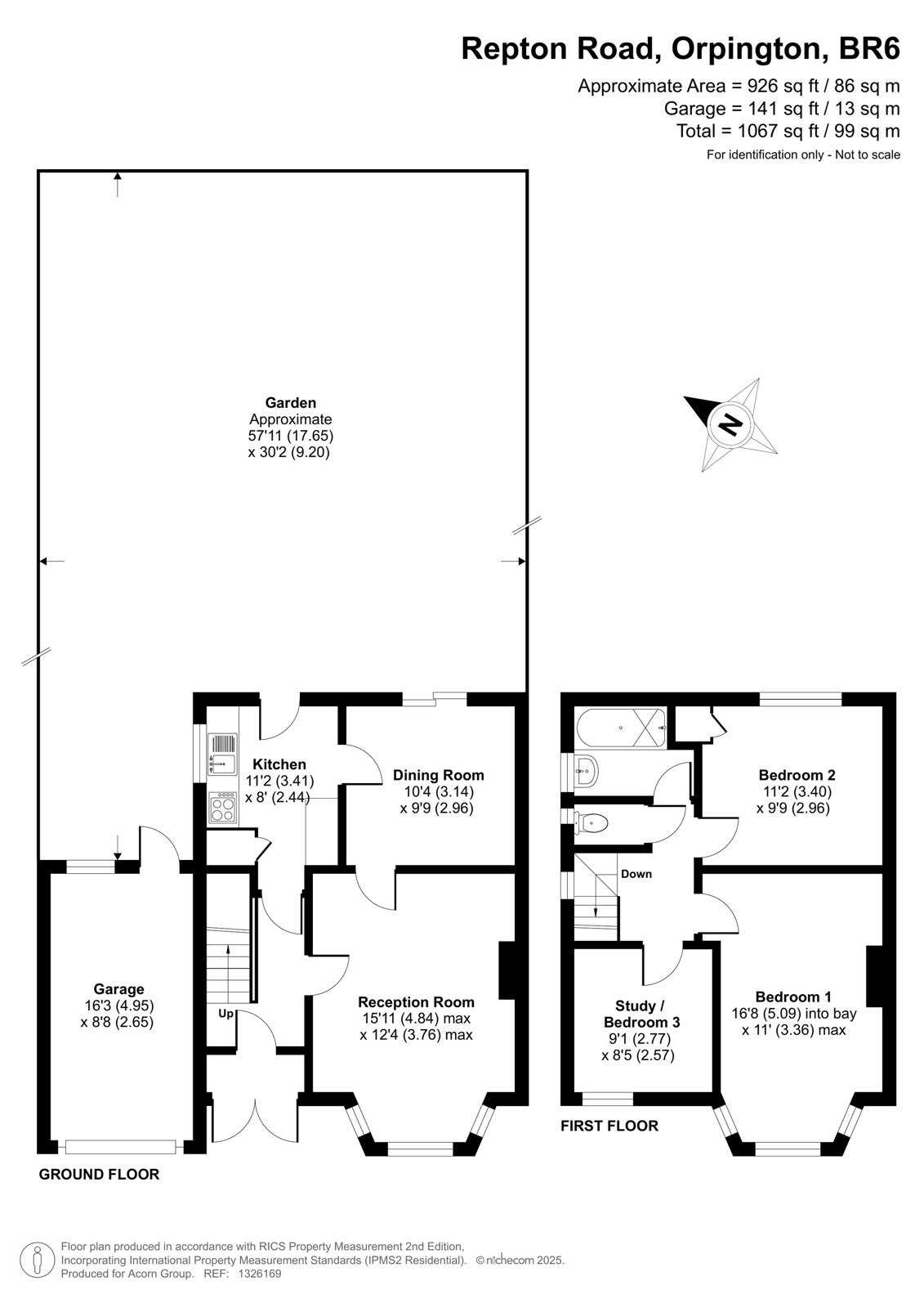
Langford Russell are pleased to present this charming three-bedroom semi-detached home, ideally located in a highly sought-after area close to excellent transport links, schools, shopping, and leisure facilities. This property is perfect for a growing family seeking spacious living with the added benefit of potential to extend to the rear, side, or into the loft (subject to planning permission).

Inside, the home opens with a bright entrance hallway leading into a generous front reception room, featuring a bay window that floods the space with natural light. The ground floor also includes a second reception room, currently used as a dining room, which offers direct access to the beautifully maintained rear garden via sliding doors. The kitchen is fitted with a range of units and includes some integrated appliances.

Upstairs, the property offers three well-proportioned bedrooms, including two doubles. The main bedroom benefits from a bay window, while the second bedroom includes a built-in wardrobe. The first floor is completed by a family bathroom and a separate WC.

Externally, the home boasts a driveway with space for multiple vehicles and a 57ft rear garden, complete with a patio area ideal for entertaining and alfresco dining.

The location is highly convenient, just a short walk from Orpington High Street and both Orpington and Chelsfield railway stations, offering fast and frequent services to London Bridge and Victoria. The area is popular with families, thanks to its reputable schools, including the well-regarded St. Olave's and Newstead Wood grammar schools, both within easy reach.

Tenure - Freehold
Council Tax London Borough Of Bromley Tax Band - E
Energy Efficiency Rating - D

Talk to Oliver Pettman from Langford Russell (Estate agents in Orpington)

 

Use our calculator to work out potential mortgage repayments and stamp duty costs. Please note, these calculators are for general interest only and must not be relied on. Speak to our Mortgage Scout team for further information and advice. 

Powered by

Total Mortgage

£

Estimated Monthly Mortgage Payment

£

  • Powered by

Orpington Area Guide

Explore the areas we serve – from parks, entertainment and transport links, to shopping, eating and drinking.

Dive into property knowledge

Visit the AcornIntel knowledge-base, our library of articles to help you make sense of all things property, or send your questions to our panel of property experts.

Get your property valued

Looking to sell or let your property? Get a free property valuation from one of our experts.

Top