The Acorn Group is London’s largest multi-brand estate agency. We offer our clients the best brands, with the best people, in the best locations.

 

Close

Asking price £750,000 freehold

Semi-detached House for sale - Portland Road, BR1

Acorn are thrilled to welcome to the market this immaculate family home, set within the ever popular Links Estate.

Having been extended and renovated to a high standard by the current owners, the house is offered chain free and boasts ample entertaining space.

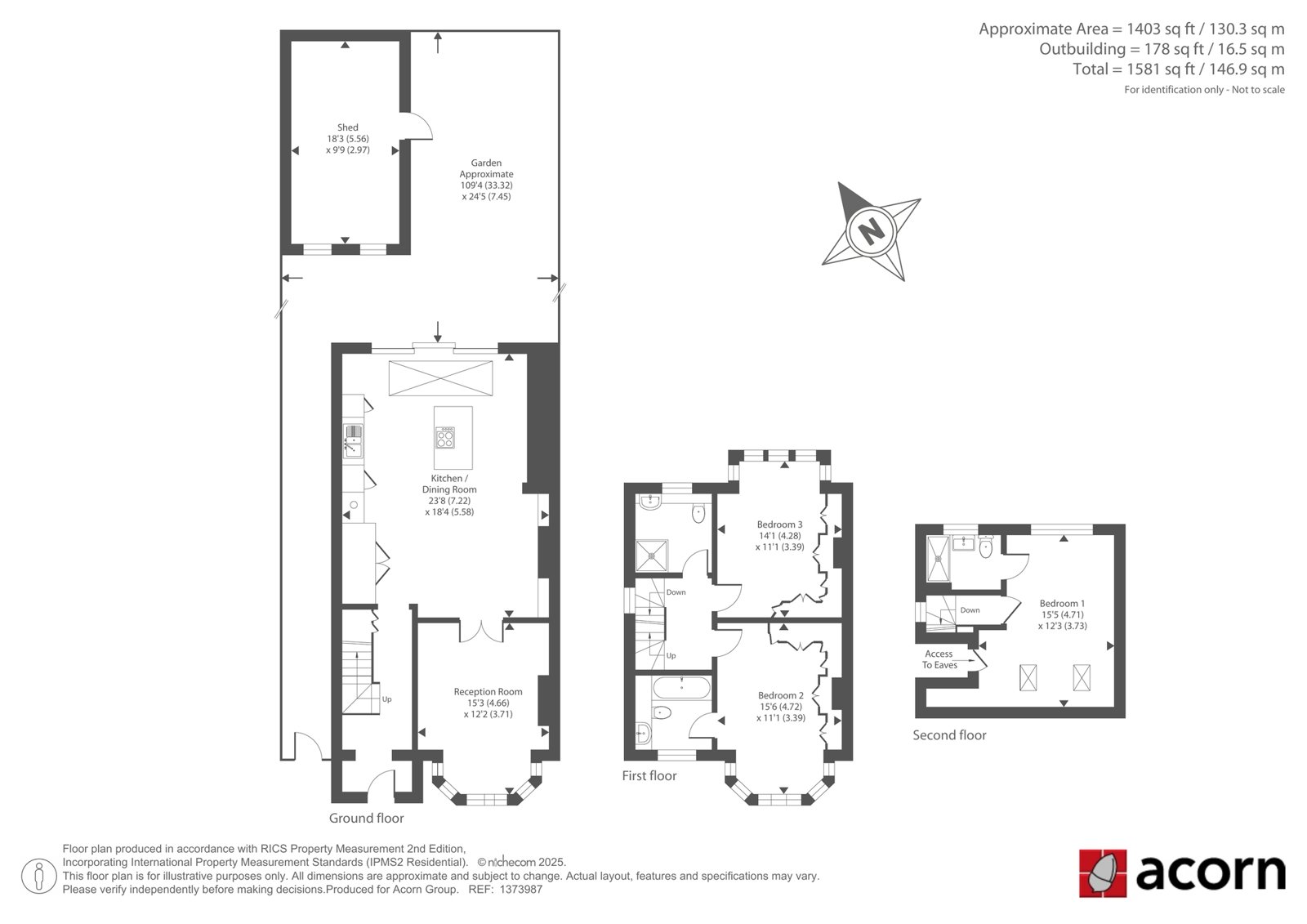
Arranged over three floors, the ground floor accommodation boasts bright entrance hall, front lounge with modern fireplace, and a fantastic open plan kitchen diner with modern kitchen units, integrated appliances, large kitchen island and floor to ceiling sliding doors leading out onto the garden. A real showstopper!

The first floor comprises master bedroom complete with bespoke fitted wardrobes and en suite bathroom, second double bedroom and family bathroom. The second floor comprises a third large double bedroom with en suite shower room.

Externally this charming family home boasts ample off street parking by way of front drive and rear garage and to the rear, the garden has been landscaped to offer a delightful space to unwind and keep the kids entertained. Offering large composite decked areas, lawn space, kids play area and rear raised deck.

A house that must be viewed, Bromley shopping centre is within easy reach, and Grove Park Station is within 0.6 miles offering frequent links into the City.


Tenure – Freehold
Energy Efficiency Rating C
Local Authority Bromley Council Tax Band E

Talk to Jake Blackman from Acorn (Estate agents in Grove Park)

 

Use our calculator to work out potential mortgage repayments and stamp duty costs. Please note, these calculators are for general interest only and must not be relied on. Speak to our Mortgage Scout team for further information and advice. 

Powered by

Total Mortgage

£

Estimated Monthly Mortgage Payment

£

  • Powered by

Grove Park Area Guide

Explore the areas we serve – from parks, entertainment and transport links, to shopping, eating and drinking.

Dive into property knowledge

Visit the AcornIntel knowledge-base, our library of articles to help you make sense of all things property, or send your questions to our panel of property experts.

Get your property valued

Looking to sell or let your property? Get a free property valuation from one of our experts.

Top