The Acorn Group is London’s largest multi-brand estate agency. We offer our clients the best brands, with the best people, in the best locations.

 

Close

Guide price £1,000,000 freehold

Semi-detached House for sale - Packmores Road, SE9

** GUIDE PRICE £1,000,000 - £1,100,000 **

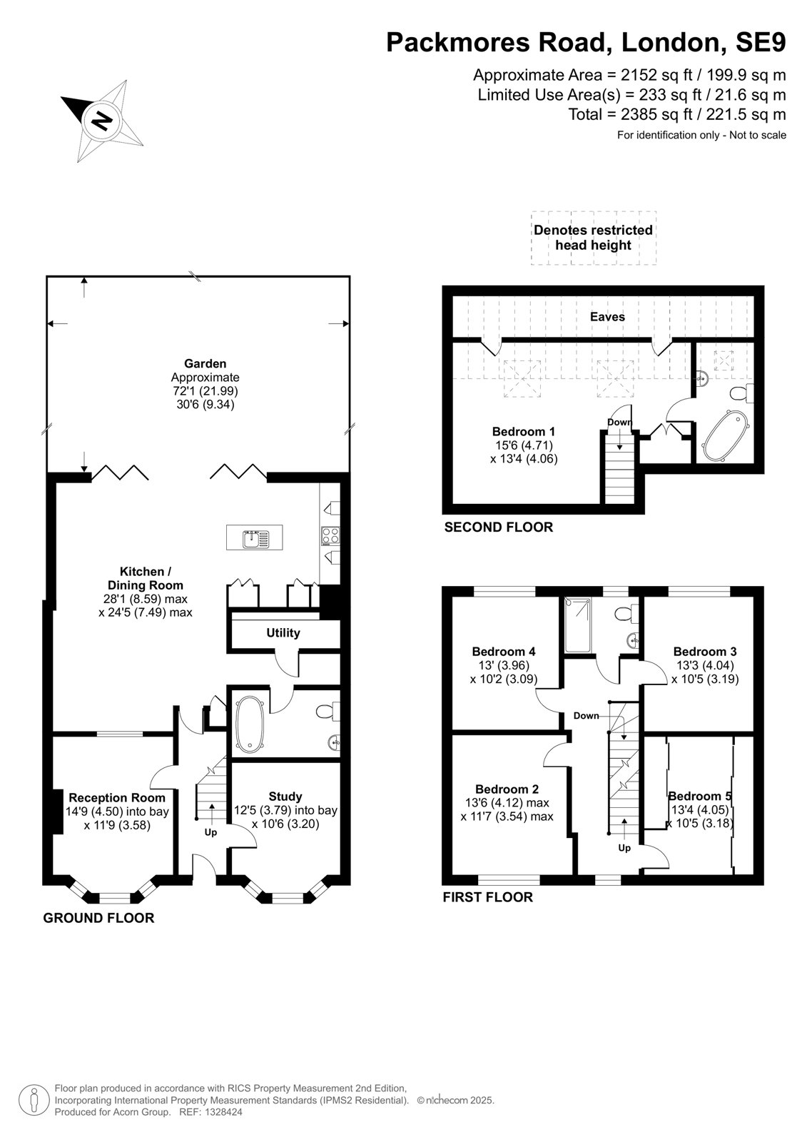
Welcome to this truly exceptional double-fronted 1930s Home, discreetly nestled on a quiet and secluded close in the prestigious Eltham Heights, SE9. This remarkable property has been lovingly extended and meticulously finished to the highest standard, offering over three expansive floors of thoughtfully designed living space—perfect for the modern family.

The home boasts five spacious double bedrooms, all beautifully presented and flooded with natural light, and three elegant bathrooms, including a stunning en-suite to the principal bedroom. Every inch of the home showcases exceptional quality, from the refined finishes to the flowing layout that blends traditional charm with contemporary convenience.

At the heart of the home is an outstanding open-plan kitchen, dining, and living area—a truly showstopping space that effortlessly combines functionality and style. The bespoke two-tone shaker-style kitchen features premium cabinetry, a large central island, and high-end appliances. Full-width bi-fold doors span the rear of the home, opening directly onto the recently landscaped garden and flooding the space with light. The open-plan layout offers additional relaxed living space, perfect for family gatherings or entertaining guests.

To the front of the property, a stylish multi-print driveway offers ample off-street parking for multiple vehicles. Internally, the home also benefits from two separate reception rooms, offering flexibility for formal entertaining, a playroom, or even a dedicated home office. A separate utility room adds further practicality, neatly tucked away to keep the main living areas clear and organised.

The rear garden has been completely overhauled, now boasting low-maintenance artificial grass, smart sleeper-edged flower beds, and a spacious patio for al fresco dining or summer gatherings. There’s even the potential for rear access, giving the property additional versatility and future-proof appeal.

Located within easy reach of Eltham and Falconwood stations, a range of highly regarded schools, and beautiful open green spaces, this exceptional home offers not only space and style, but also a wonderful family lifestyle in one of SE9’s most desirable neighbourhoods.

Homes of this calibre are extremely rare—early viewing is strongly advised.

Royal Borough of Greenwich Council Tax: Band E | Energy Efficiency Rating D

Talk to Oliver Henness from John Payne (Estate agents in Eltham)

 

Use our calculator to work out potential mortgage repayments and stamp duty costs. Please note, these calculators are for general interest only and must not be relied on. Speak to our Mortgage Scout team for further information and advice. 

Powered by

Total Mortgage

£

Estimated Monthly Mortgage Payment

£

  • Powered by

Eltham Area Guide

Explore the areas we serve – from parks, entertainment and transport links, to shopping, eating and drinking.

Dive into property knowledge

Visit the AcornIntel knowledge-base, our library of articles to help you make sense of all things property, or send your questions to our panel of property experts.

Get your property valued

Looking to sell or let your property? Get a free property valuation from one of our experts.

Top