The Acorn Group is London’s largest multi-brand estate agency. We offer our clients the best brands, with the best people, in the best locations.

 

Close

OIEO £450,000 freehold

Semi-detached House - Orchard Avenue, DA17

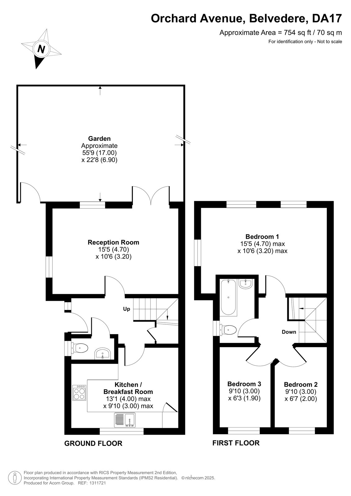
This imposing semi-detached house built in the late 90’s is located within a sought-after area in Belvedere on the cusp of Bexleyheath & Abbey Wood, the accommodation offers 754sqft of floorspace with a huge wrap-around plot. As you enter, you’ll find a handy downstairs toilet on the righthand side, which is then followed by the large kitchen-diner.

The kitchen is smartly presented with plenty of worktop space and matching cabinets across the walls and pleasant views of the front garden. On the opposite side is the impressive reception room which comprises 15'5ftx10'6ft in size comfortably fitting large sofas with double doors leading out to the landscaped garden. Upstairs offers a traditional layout with access to three bedrooms and the family bathroom suite.

You’ll be pleased to know the garden is South-facing and a suntrap throughout the day! The owners have recently landscaped the garden which has a patio section at the front and back-end ideal for garden furniture or barbeque spot. The back end of the garden can be used as off-street parking by reinstalling gates for access for anyone who needs secure parking, as the kerb has already been dropped; alternatively, there is also an impressive front garden that could be converted into a driveway suitable for two/three cars.

The owners have been happily living here for many years and are now simply moving to downsize to something more suitable to their needs. Additional benefits include gas central heating (boiler recently serviced), updated electrics, double glazing, potential for a rear extension (STPP) and loft space for extra storage.

Orchard avenue is located within a sought-after area in Belvedere around the corner from the popular Bedonwell school. Also ideally located for amenities with Nuxley Village nearby offering a range of shops which includes coffee shops, cafes, boutique stores, takeaways, medical centre, and a local Sainsburys & Co-Op.

There is also a great choice of parks to enjoy nearby with Belvedere Recreation Grounds, Frank’s Park or Lesnes Abbey Woods which host events and has plenty of history in being an important site for early Tertiary fossils. For commuters, you can get a bus from Woolwich Road directly to Abbey Wood Railway which operates the Thameslink & Southeastern Line as well as the new Elizabeth Line which has even more options into the city, fast and frequently! Bexleyheath shopping centre is also within an easy reach with the 422 bus on Bedonwell Road heading directly there, there is even more choice in Bexleyheath with a selection of restaurants, bars, pubs, cinema, bowling alley and Danson Park to enjoy with family and friends.

We expect this apartment to be a popular choice so please call our office on 01322 478 333 to arrange a viewing or ask any questions!

London Borough of Bexley - Council Tax Band - D
Energy Efficiency Rating - C

Talk to Arikson Franco from Acorn (Estate agents in Belvedere)

 

Use our calculator to work out potential mortgage repayments and stamp duty costs. Please note, these calculators are for general interest only and must not be relied on. Speak to our Mortgage Scout team for further information and advice. 

Powered by

Total Mortgage

£

Estimated Monthly Mortgage Payment

£

  • Powered by

Belvedere Area Guide

Explore the areas we serve – from parks, entertainment and transport links, to shopping, eating and drinking.

Dive into property knowledge

Visit the AcornIntel knowledge-base, our library of articles to help you make sense of all things property, or send your questions to our panel of property experts.

Get your property valued

Looking to sell or let your property? Get a free property valuation from one of our experts.

Top