The Acorn Group is London’s largest multi-brand estate agency. We offer our clients the best brands, with the best people, in the best locations.

 

Close

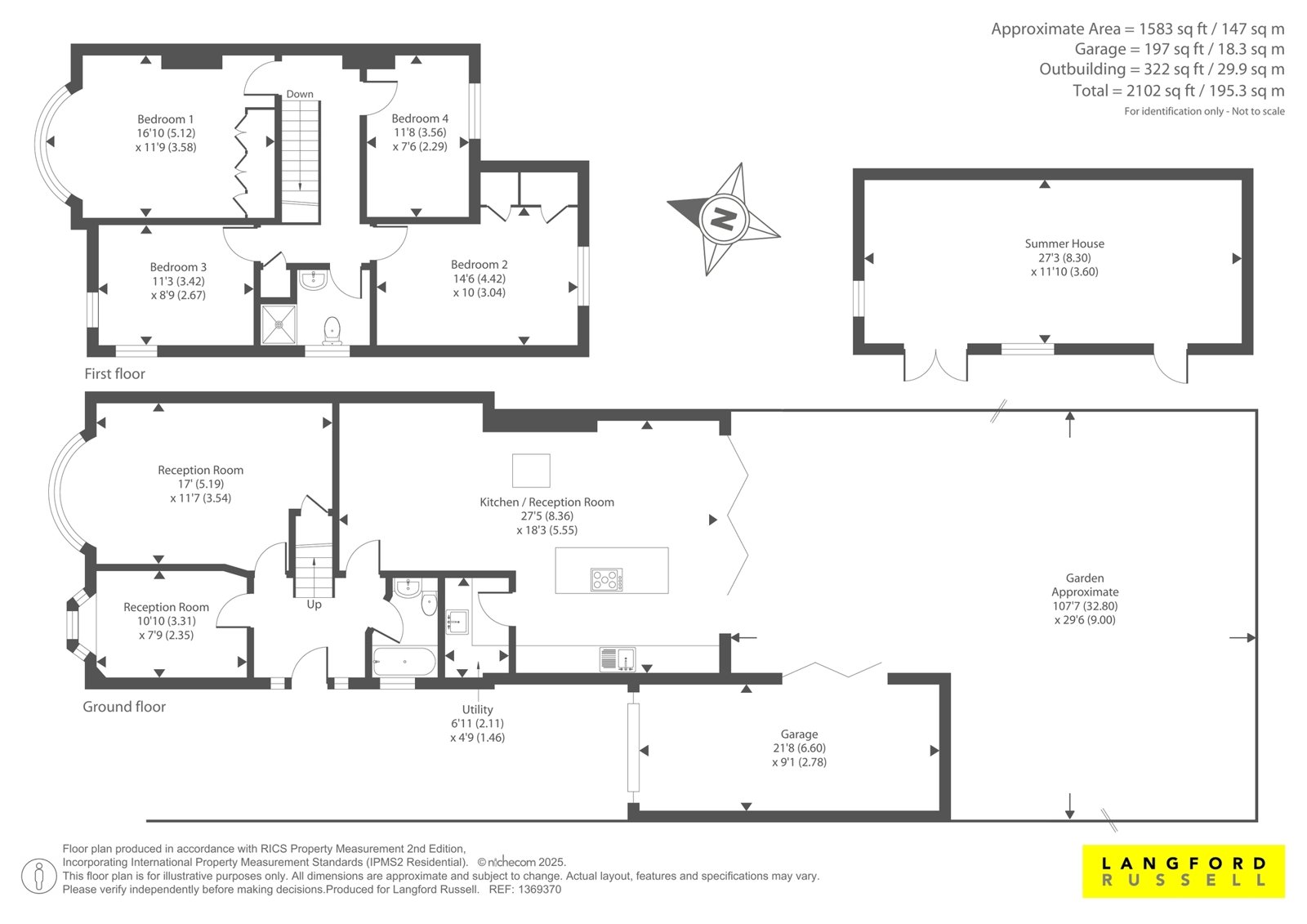
Asking price £880,000 freehold

Semi-detached House - Hurst Road, DA15

Offered to the market in immaculate order throughout, Langford Russell are delighted to present an extended, five bedroom, semi-detached 1930s chalet, situated within close proximity to Sidcup Train Station and with no onward chain.

Having undergone an extensive renovation by the current owners, the property briefly comprises; entrance hall, spacious front reception room with bay window, a second reception room/fifth bedroom, downstairs bathroom with three piece suite. The kitchen has been vastly extended, with an array of wall and base storage, central island, integrated appliances, skylight, underfloor heating, separate utility room and bi-folding doors overlooking the 107ft landscaped rear garden, mostly laid to artificial lawn with patio area, hot tub, access to garage and a highly engineered summer house with built-in bar and air conditioning.

The first floor provides four double bedrooms, the first and second with built-in wardrobe space and main family bathroom with walk-in shower.

Further benefits include; attached garage, off-street parking for multiple vehicles and an EV charging port.

The property is conveniently located just 0.5 miles from Sidcup Station, providing excellent services into London Bridge, Charing Cross and Cannon Street.

A number of highly renowned schools are within close proximity, including; Chislehurst & Sidcup Grammar School and Burnt Oak Primary School.

Internal viewing is highly recommended.

Freehold
London Borough of Bexley - Council Tax Band: F
Energy Efficiency Rating: C

Talk to Jack Power from Langford Russell (Estate agents in Sidcup)

 

Use our calculator to work out potential mortgage repayments and stamp duty costs. Please note, these calculators are for general interest only and must not be relied on. Speak to our Mortgage Scout team for further information and advice. 

Powered by

Total Mortgage

£

Estimated Monthly Mortgage Payment

£

  • Powered by

Sidcup Area Guide

Explore the areas we serve – from parks, entertainment and transport links, to shopping, eating and drinking.

Dive into property knowledge

Visit the AcornIntel knowledge-base, our library of articles to help you make sense of all things property, or send your questions to our panel of property experts.

Get your property valued

Looking to sell or let your property? Get a free property valuation from one of our experts.

Top