The Acorn Group is London’s largest multi-brand estate agency. We offer our clients the best brands, with the best people, in the best locations.

 

Close

Guide price £375,000 freehold

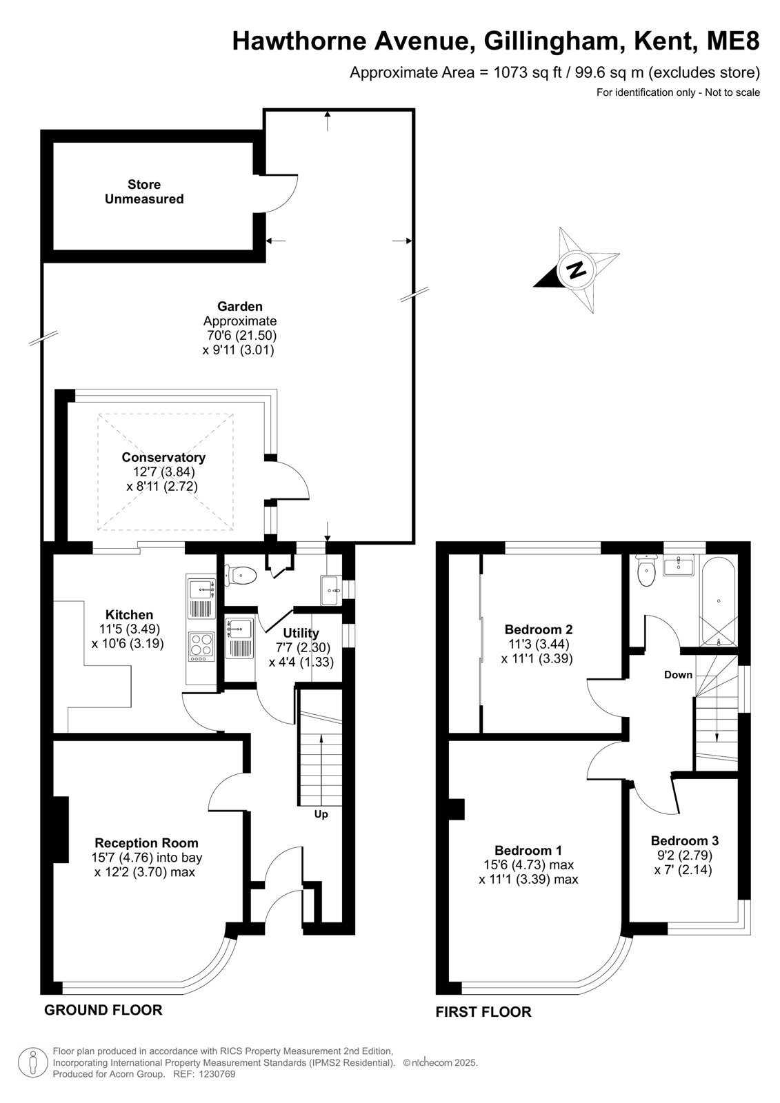
Semi-detached House - Hawthorne Avenue, Kent, ME8

**Guide Price £375,000 - £395,000**

CHAIN FREE three bedroom semi-detached, modern family home, presented in immaculate condition & set close to popular grammar, junior and primary schools.

Boasting a downstairs w.c., separate utility room, newly installed kitchen, leading to an open conservatory currently used as a dining area, plus an additional bay fronted living room, double driveway and side access, viewing is a must to fully appreciate what is on offer.

Once inside you will see this house has undergone an extensive renovation programme, which includes newly installed central heating, a total rewire (all fully certified) redecoration and new floor coverings throughout, all done in a neutral and tasteful style.

Three well proportioned bedrooms will appeal to most families with further room to extend in the loft (STPP), so if you are looking for somewhere needing no works, call now to arrange a viewing.

Talk to Mark Sugarman from Acorn (Estate agents in Rainham)

 

Use our calculator to work out potential mortgage repayments and stamp duty costs. Please note, these calculators are for general interest only and must not be relied on. Speak to our Mortgage Scout team for further information and advice. 

Powered by

Total Mortgage

£

Estimated Monthly Mortgage Payment

£

  • Powered by

Rainham Area Guide

Explore the areas we serve – from parks, entertainment and transport links, to shopping, eating and drinking.

Dive into property knowledge

Visit the AcornIntel knowledge-base, our library of articles to help you make sense of all things property, or send your questions to our panel of property experts.

Get your property valued

Looking to sell or let your property? Get a free property valuation from one of our experts.

Top