The Acorn Group is London’s largest multi-brand estate agency. We offer our clients the best brands, with the best people, in the best locations.

 

Close

Guide price £275,000 freehold

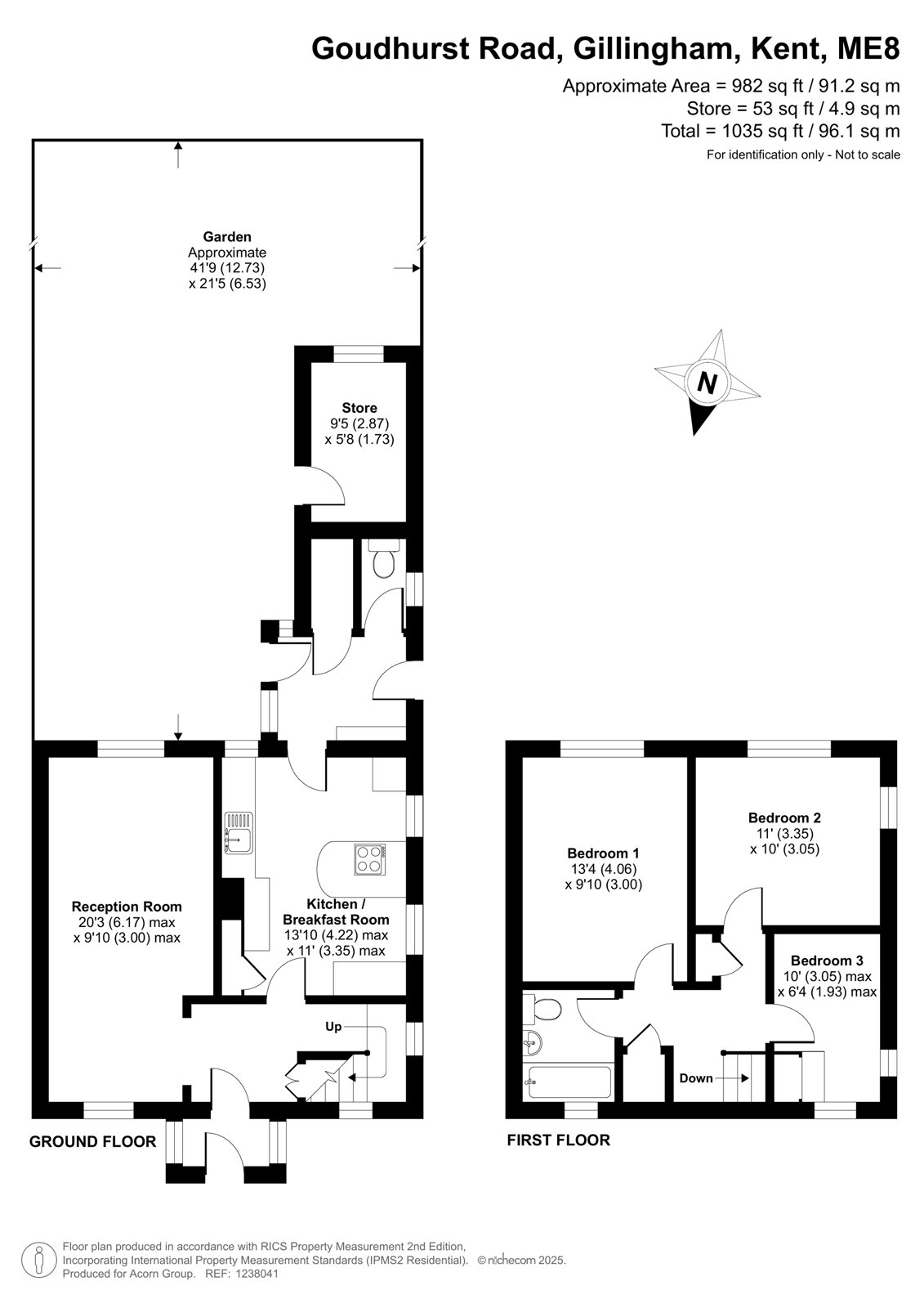
Semi-detached House - Goudhurst Road, Kent, ME8

** GUIDE PRICE - £275,000 - £300,000 **

Are you looking for an ideal family home with plenty of potential to put your own stamp on? Then this could be the one for you.

Situated in the ever popular Twydall area is this three bedroom end of terrace family home in need of modernisation within close proximity to local shops, schools and amenities.

This property comprises three bedrooms, a family bathroom, a kitchen/breakfast room and a living room along with a cloakroom. The rear garden is ideal for relaxing on summer evenings or for children to play, there is also a storage shed for garden tools etc.

Call Acorn today to secure your viewing appointment.

Medway Council - Council Tax Band - C
Energy Efficiency Rating - C

Talk to Mark Sugarman from Acorn (Estate agents in Rainham)

 

Use our calculator to work out potential mortgage repayments and stamp duty costs. Please note, these calculators are for general interest only and must not be relied on. Speak to our Mortgage Scout team for further information and advice. 

Powered by

Total Mortgage

£

Estimated Monthly Mortgage Payment

£

  • Powered by

Rainham Area Guide

Explore the areas we serve – from parks, entertainment and transport links, to shopping, eating and drinking.

Dive into property knowledge

Visit the AcornIntel knowledge-base, our library of articles to help you make sense of all things property, or send your questions to our panel of property experts.

Get your property valued

Looking to sell or let your property? Get a free property valuation from one of our experts.

Top