The Acorn Group is London’s largest multi-brand estate agency. We offer our clients the best brands, with the best people, in the best locations.

 

Close

Guide price £775,000 freehold

Semi-detached House for sale - Eton Road, BR6

** GUIDE PRICE £775,000 - £800,000 **

Langford Russell are delighted to present this beautifully refurbished four-bedroom 1930s semi-detached family home, positioned on a prime residential road in South Orpington.
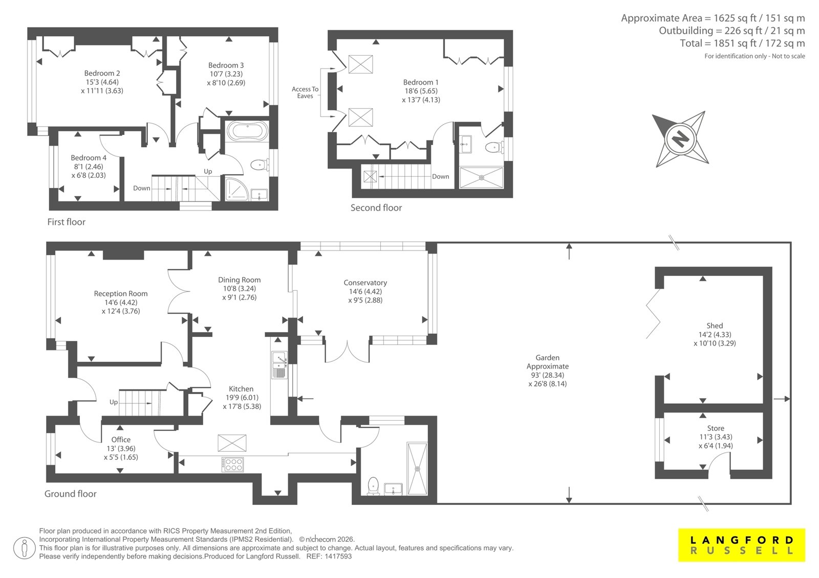
Extending to approximately 1,851 sq. ft. of total accommodation (including the outbuilding), this impressive property has been thoughtfully extended and upgraded to a high modern standard, creating a spacious and versatile home ideal for family living.
The property welcomes you with a bright entrance hallway leading to a generous 14’6 reception room, which flows effortlessly into the dining room overlooking the rear garden - perfect for both everyday living and entertaining. The well-appointed kitchen offers ample storage and integrated appliances, with direct access to the conservatory and Southeast facing rear garden. The ground floor further benefits from a separate office, ideal for home working, and a convenient downstairs shower room/WC.
To the first floor are three well-proportioned bedrooms, all served by a modern family bathroom. The impressive principal bedroom occupies the second floor, created via a loft extension, providing a private and spacious retreat complete with useful eaves storage and a contemporary three-piece bathroom.
Externally, the rear garden extends to approximately 93 ft, offering a secluded and well-maintained space ideal for relaxing or entertaining. To the rear sits a substantial outbuilding incorporating a shed and separate store, presenting excellent potential for a home office, gym, studio or additional storage.

Located near Orpington Town Centre, the location provides good access to transport links to central London with Chelsfield stations being 0.6 miles away. Orpington town centre provides an array of local amenities with a comprehensive range of shops and facilities including the Walnuts leisure centre and Odeon cinema. Some outstanding schools are nearby including The Highway Primary School (0.3 miles) and Chelsfield Primary School (0.9 miles). Furthermore, there are some super selective high achieving.

Tenure Freehold
Local Authority Bromley Band D
Energy Efficiency Rating C

Talk to Oliver Pettman from Langford Russell (Estate agents in Orpington)

 

Use our calculator to work out potential mortgage repayments and stamp duty costs. Please note, these calculators are for general interest only and must not be relied on. Speak to our Mortgage Scout team for further information and advice. 

Powered by

Total Mortgage

£

Estimated Monthly Mortgage Payment

£

  • Powered by

Orpington Area Guide

Explore the areas we serve – from parks, entertainment and transport links, to shopping, eating and drinking.

Dive into property knowledge

Visit the AcornIntel knowledge-base, our library of articles to help you make sense of all things property, or send your questions to our panel of property experts.

Get your property valued

Looking to sell or let your property? Get a free property valuation from one of our experts.

Top