The Acorn Group is London’s largest multi-brand estate agency. We offer our clients the best brands, with the best people, in the best locations.

 

Close

Offers Over £430,000 freehold

Semi-detached House for sale - Erith Road, DA17

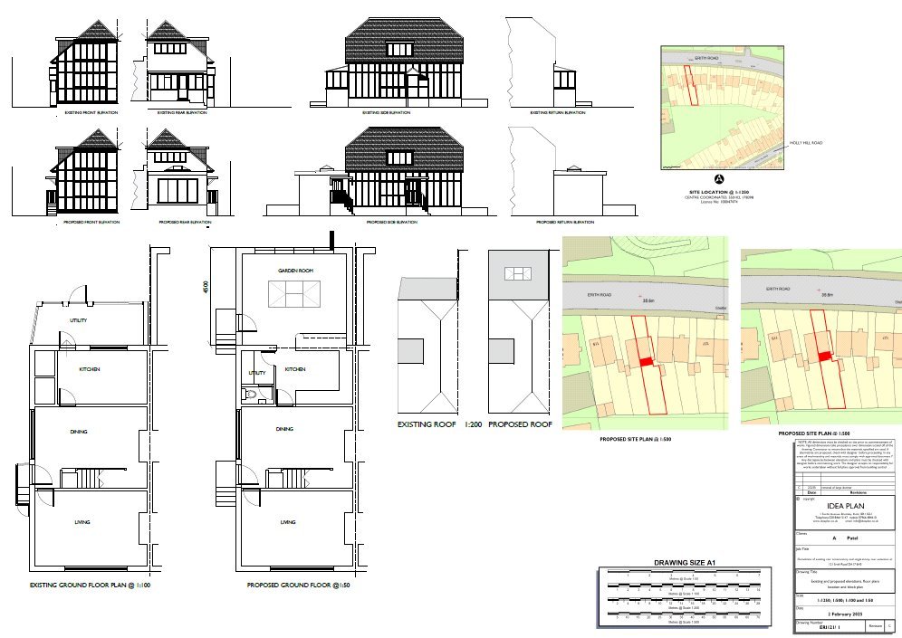
This well-presented ‘Tudor’ style semi-detached home is located near Nuxley Village! The accommodation offers an impressive 1172sqft of floorspace with a large garden plot. As you enter, you’ll firstly step into the dining room which has the kitchen alongside offering potential to be knocked though and create a huge kitchen-diner. The kitchen would benefit from some modernisation, making it a great project for someone to put their own stamp on it and design this home to their taste. At the back is an added conservatory space overlooking the garden, which has further potential to be converted into an extension (which has permission granted to add even more internal space). At the front of the house is the generous front reception room with a charming fireplace and exposed beams in the ceiling adding to charm of this home. You’ll be pleased to know the garden is South-facing and a suntrap throughout the day to enjoy! The garden is huge with lovely treetop views at the back giving you extra privacy, the space also allows for a summer house or outbuilding to be added without feeling like you’ve compromised any garden space. Upstairs comprises three bedrooms and the smart family bathroom suite, two of the rooms being double bedrooms and a good size single room all with built in storage/wardrobes. This home is a great blank canvas for someone looking to add value and create their dream home, it’s naturally bright & airy and has additional benefits including combi-boiler system, double glazing, scope to extend at the back with planning permission granted and off-street parking.

Erith Road is well located for amenities with Nuxley Village nearby offering a range of shops which includes coffee shops, cafes, boutique stores, takeaways, and a local Co-op. There is also a great choice of parks to enjoy nearby with Belvedere Beach & Recreation Grounds, Frank’s park or Lesnes Abbey Woods which hosts events and has plenty of history being an important site for early Tertiary fossils. Nuxley Village is ideal for families with a selection of schools nearby to choose from. For commuters, Belvedere is 0.8m walk which operates the Southeastern Line into London Bridge and is one stop away from Abbey Wood with the new Elizabeth Line which has even more options into the city, fast and frequently!

Please call our office on 0203 657 7660 to arrange a viewing or ask any questions.

London Borough of Lewisham - Council Tax Band - E
Energy Efficiency Rating - E

Talk to Arikson Franco from Acorn (Estate agents in Belvedere)

 

Use our calculator to work out potential mortgage repayments and stamp duty costs. Please note, these calculators are for general interest only and must not be relied on. Speak to our Mortgage Scout team for further information and advice. 

Powered by

Total Mortgage

£

Estimated Monthly Mortgage Payment

£

  • Powered by

Belvedere Area Guide

Explore the areas we serve – from parks, entertainment and transport links, to shopping, eating and drinking.

Dive into property knowledge

Visit the AcornIntel knowledge-base, our library of articles to help you make sense of all things property, or send your questions to our panel of property experts.

Get your property valued

Looking to sell or let your property? Get a free property valuation from one of our experts.

Top