The Acorn Group is London’s largest multi-brand estate agency. We offer our clients the best brands, with the best people, in the best locations.

 

Close

Guide price £1,200,000 freehold

Semi-detached House for sale - Belmont Hill, SE13

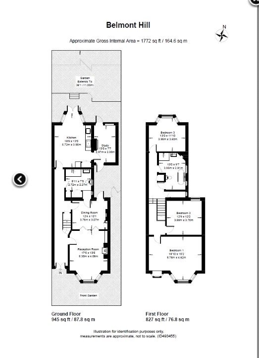
This as a beautiful and spacious 3 bedroom Edwardian House in the Belmont Park conservation area. The house has been lovingly and tastefully restored and decorated throughout with a great eye for detail and ensuring the fixtures and fittings complement the original features of the house. There is scope to extend into the generous loft if more bedrooms are required, which some of the neighbouring houses have already done.

On entry, a long floor tiled corridor runs the whole length of the house and leads to a stunning DeVOL designed kitchen and dining area. The kitchen has marble work surfaces and includes a 6 burner gas cooker range, oven, large family size fridge freezer and dishwasher. The kitchen also benefits from an underheated Bert and May tiled floor.

Double doors lead from the kitchen to an outside dining area and steps up to the garden. Also leading off the kitchen is a summer room, perfect for remote working.

A downstairs bathroom includes under tile heating, an Indus designer shower enclosure with optional Keuco shower seat and rail, WC and hand basin. A washing machine is enclosed within a cupboard, with room for a dryer too.

Leading off the main hallway is the large living and dining area, with oak parquet flooring and original features including fireplaces and a functional wood burner. The room can be separated into 2 spaces using the beautiful concertina wooden doors and has a comfortable feel for relaxing, dining and entertaining.

On the 1st floor there are 3 spacious bedrooms, with wooden floors. Storage is located on both floors and is plentiful.

A 2nd bathroom includes a spacious shower, roll top bath and original style Victorian floor and wall tiles and under tile, heating.

All transport links, including buses and Lewisham Station (DLR and National Rail), are within a few minutes’ walk, with train times of 13 minutes into London Bridge and 20 minutes to Canary Wharf.
Blackheath and Greenwich Park are close by and offer an alternative area to explore and enjoy, with their farmers markets, independent boutiques, book shops and bakeries. There are many excellent local schools in the area and also plenty of parks and green open spaces to enjoy. Energy Efficiency Rating E.

Freehold
Lewisham Council

Talk to Richard O'Toole from John Payne (Estate agents in Blackheath)

 

Use our calculator to work out potential mortgage repayments and stamp duty costs. Please note, these calculators are for general interest only and must not be relied on. Speak to our Mortgage Scout team for further information and advice. 

Powered by

Total Mortgage

£

Estimated Monthly Mortgage Payment

£

  • Powered by

Blackheath Area Guide

Explore the areas we serve – from parks, entertainment and transport links, to shopping, eating and drinking.

Dive into property knowledge

Visit the AcornIntel knowledge-base, our library of articles to help you make sense of all things property, or send your questions to our panel of property experts.

Get your property valued

Looking to sell or let your property? Get a free property valuation from one of our experts.

Top