The Acorn Group is London’s largest multi-brand estate agency. We offer our clients the best brands, with the best people, in the best locations.

 

Close

Guide price £425,000 shareOfFreehold

Maisonette - Woodland Road, SE19

**Guide Price: £425,000 - £450,000**

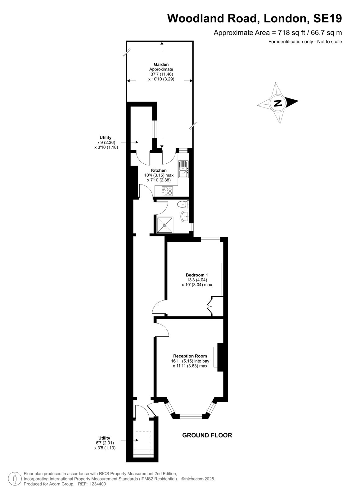
Nestled in a sought-after area of SE19, this beautifully presented one-bedroom flat occupies the ground floor of a charming Victorian maisonette. Offering a spacious 718 sq. ft. of modern living space, the flat combines period character with contemporary style, making it the perfect home for those seeking comfort and convenience.

The layout features generously sized rooms, allowing natural light to flood the space and create an inviting atmosphere. The flat boasts a large living area ideal for both relaxing and entertaining, as well as a modern kitchen with sleek finishes and plenty of storage. The generously sized bedroom offers a peaceful retreat, with ample space for furniture and relaxation.

One of the standout features of this property is the private garden, providing an ideal spot for outdoor dining or simply enjoying the fresh air in privacy. With its attractive Victorian exterior, the flat exudes charm and warmth.

Additional benefits include roadside parking, providing added convenience, and the flat’s close proximity to local amenities, shops, and transport links. Whether you’re commuting into central London or exploring the local area, this property offers the best of both worlds.

Share Of Freehold: 124 Years
Council Tax Band: B
Energy Efficiency Rating: D

Talk to George Liney from Acorn (Estate agents in Crystal Palace)

 

Use our calculator to work out potential mortgage repayments and stamp duty costs. Please note, these calculators are for general interest only and must not be relied on. Speak to our Mortgage Scout team for further information and advice. 

Powered by

Total Mortgage

£

Estimated Monthly Mortgage Payment

£

  • Powered by

Crystal Palace Area Guide

Explore the areas we serve – from parks, entertainment and transport links, to shopping, eating and drinking.

Dive into property knowledge

Visit the AcornIntel knowledge-base, our library of articles to help you make sense of all things property, or send your questions to our panel of property experts.

Get your property valued

Looking to sell or let your property? Get a free property valuation from one of our experts.

Top