The Acorn Group is London’s largest multi-brand estate agency. We offer our clients the best brands, with the best people, in the best locations.

 

Close

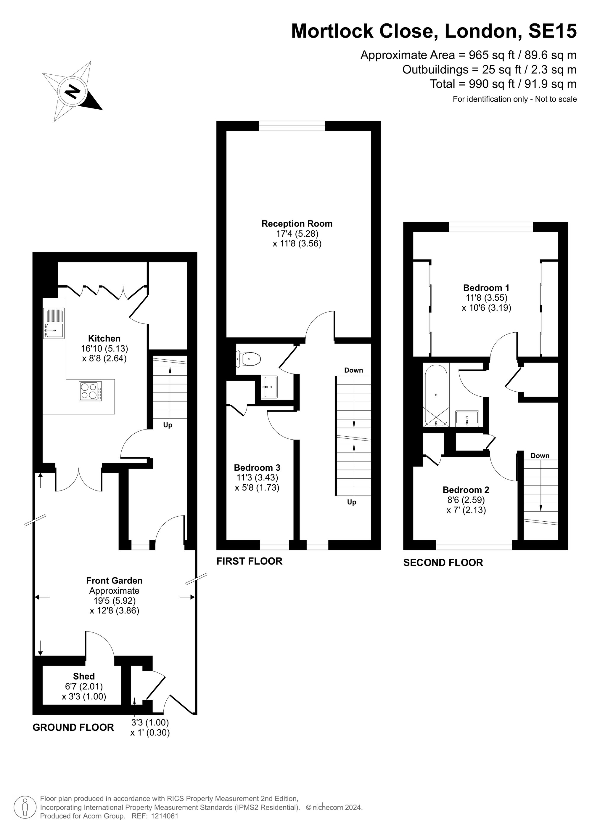
Guide price £500,000 leasehold

Maisonette for sale - Mortlock Close, SE15

Guide Price: £500,000 - £525,000
,
Three bedroom, three storey maisonette measing at 990sqft occupying a quiet location between Peckham Rye, Nunhead and Queens Road stations.

Comprising of; three bedrooms, a large first floor reception room, two bathrooms and a good sized kitchen/diner on the ground floor which gives access to the private landscaped front garden. This property has been refurbished to a high spec by it’s current owners and has ample storage space throughout including understair storage with fitted utilties along with a storage cupboard in the garden. This property is the perfect first time purchase.

Mortlock Close is situated in a vibrant community with excellent transport links are exceptional from this location with Overground services from Queens Road (0.3mi) and Peckham Rye (0.6mi) stations as well as National Rail services from Nunhead (0.7mi within short walking distance) . The surrounding area boasts a variety of shops, independent restaurants and green space such as Cossal Park and Peckham Rye park (both a short walk away), making it perfect for those who appreciate urban living with a touch of tranquillity.

Lease Length: 89 Years
Service Charge: £5,339 pa including heating, hot water and building insurance
Ground Rent: £50 pa
Council Tax Band: C
Energy Efficiency Rating: D

Talk to James Moss from Acorn (Estate agents in Peckham Rye)

 

Use our calculator to work out potential mortgage repayments and stamp duty costs. Please note, these calculators are for general interest only and must not be relied on. Speak to our Mortgage Scout team for further information and advice. 

Powered by

Total Mortgage

£

Estimated Monthly Mortgage Payment

£

  • Powered by

Peckham Rye Area Guide

Explore the areas we serve – from parks, entertainment and transport links, to shopping, eating and drinking.

Dive into property knowledge

Visit the AcornIntel knowledge-base, our library of articles to help you make sense of all things property, or send your questions to our panel of property experts.

Get your property valued

Looking to sell or let your property? Get a free property valuation from one of our experts.

Top