The Acorn Group is London’s largest multi-brand estate agency. We offer our clients the best brands, with the best people, in the best locations.

 

Close

Guide price £575,000 shareOfFreehold

Maisonette for sale - Canterbury Grove, SE27

Guide Price £575,000 - £600,000

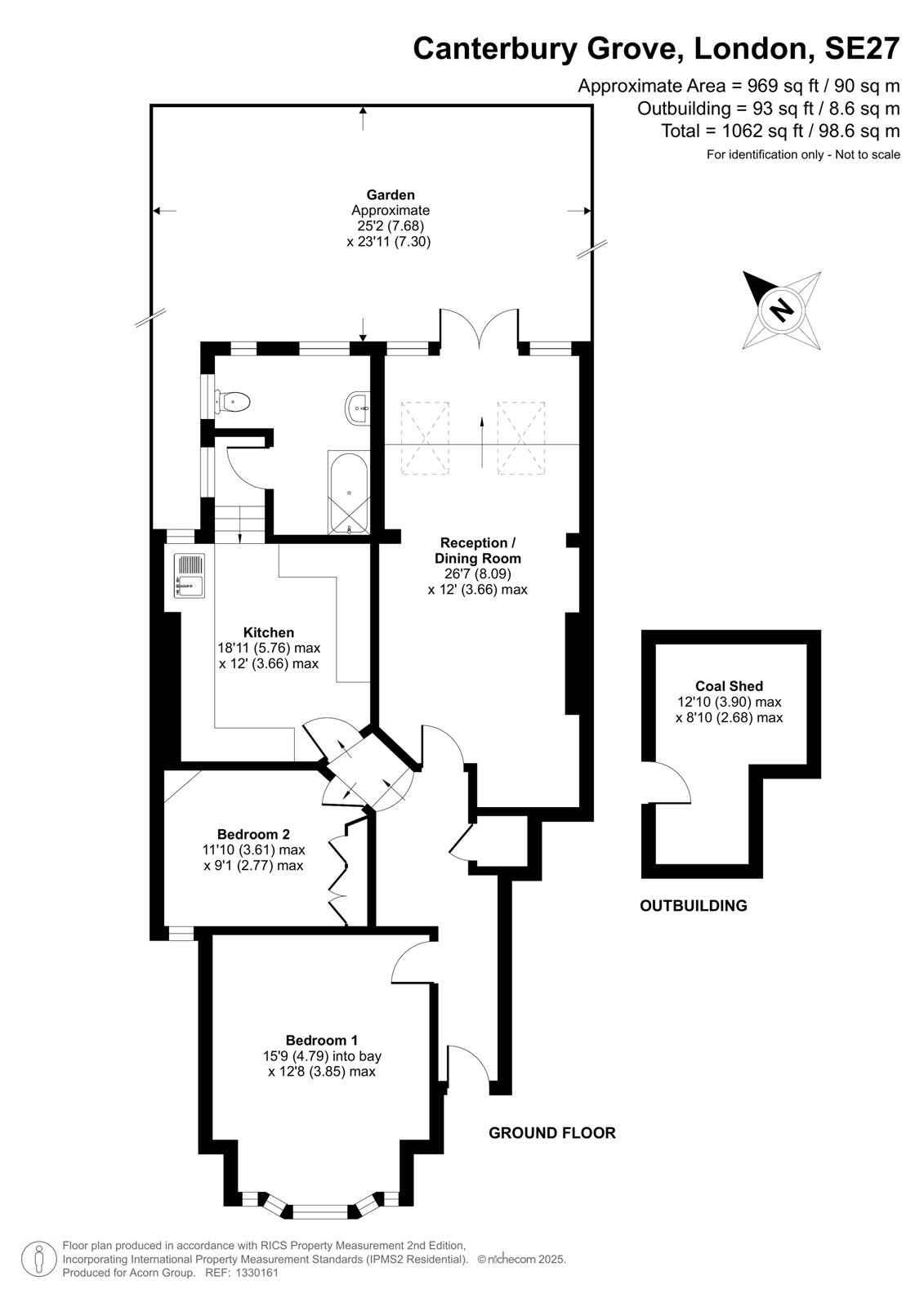
Occupying the entire ground floor of an elegant red-brick Edwardian mid-terraced home, this beautifully presented two-bedroom garden flat offers nearly 1,000 sq ft of stylish, characterful accommodation, blending period charm with modern living.

The interior boasts a spacious and light-filled front reception room, complete with a striking bay window and high ceilings that enhance the sense of space and grandeur. A well-proportioned second bedroom features bespoke fitted storage, while the sleek, fully integrated kitchen leads seamlessly to a chic, on-trend three-piece bathroom. To the rear, the heart of the home reveals itself in an impressive 26ft open-plan kitchen/living/dining area—ideal for entertaining or relaxed day-to-day living. French doors open directly onto a private, low-maintenance garden, offering a peaceful retreat and benefiting from additional outdoor storage via a charming original coal shed.

Perfectly positioned on the ever-popular Canterbury Grove, a quiet, tree-lined street in the heart of West Norwood, the property enjoys a prime location just moments from the area’s thriving high street. Residents are spoilt for choice with a vibrant mix of independent cafés, artisan bakeries, restaurants, and the renowned West Norwood Picturehouse cinema. Excellent transport links include West Norwood and Tulse Hill stations, offering swift connections to London Bridge, Victoria, Clapham Junction, and the City, while a number of reliable bus routes ensure effortless travel across South London.

Share Of Freehold

Talk to George Liney from Acorn (Estate agents in Crystal Palace)

 

Use our calculator to work out potential mortgage repayments and stamp duty costs. Please note, these calculators are for general interest only and must not be relied on. Speak to our Mortgage Scout team for further information and advice. 

Powered by

Total Mortgage

£

Estimated Monthly Mortgage Payment

£

  • Powered by

Crystal Palace Area Guide

Explore the areas we serve – from parks, entertainment and transport links, to shopping, eating and drinking.

Dive into property knowledge

Visit the AcornIntel knowledge-base, our library of articles to help you make sense of all things property, or send your questions to our panel of property experts.

Get your property valued

Looking to sell or let your property? Get a free property valuation from one of our experts.

Top