The Acorn Group is London’s largest multi-brand estate agency. We offer our clients the best brands, with the best people, in the best locations.

 

Close

Asking price £385,000 shareOfFreehold

Maisonette for sale - Burnt Ash Road, SE12

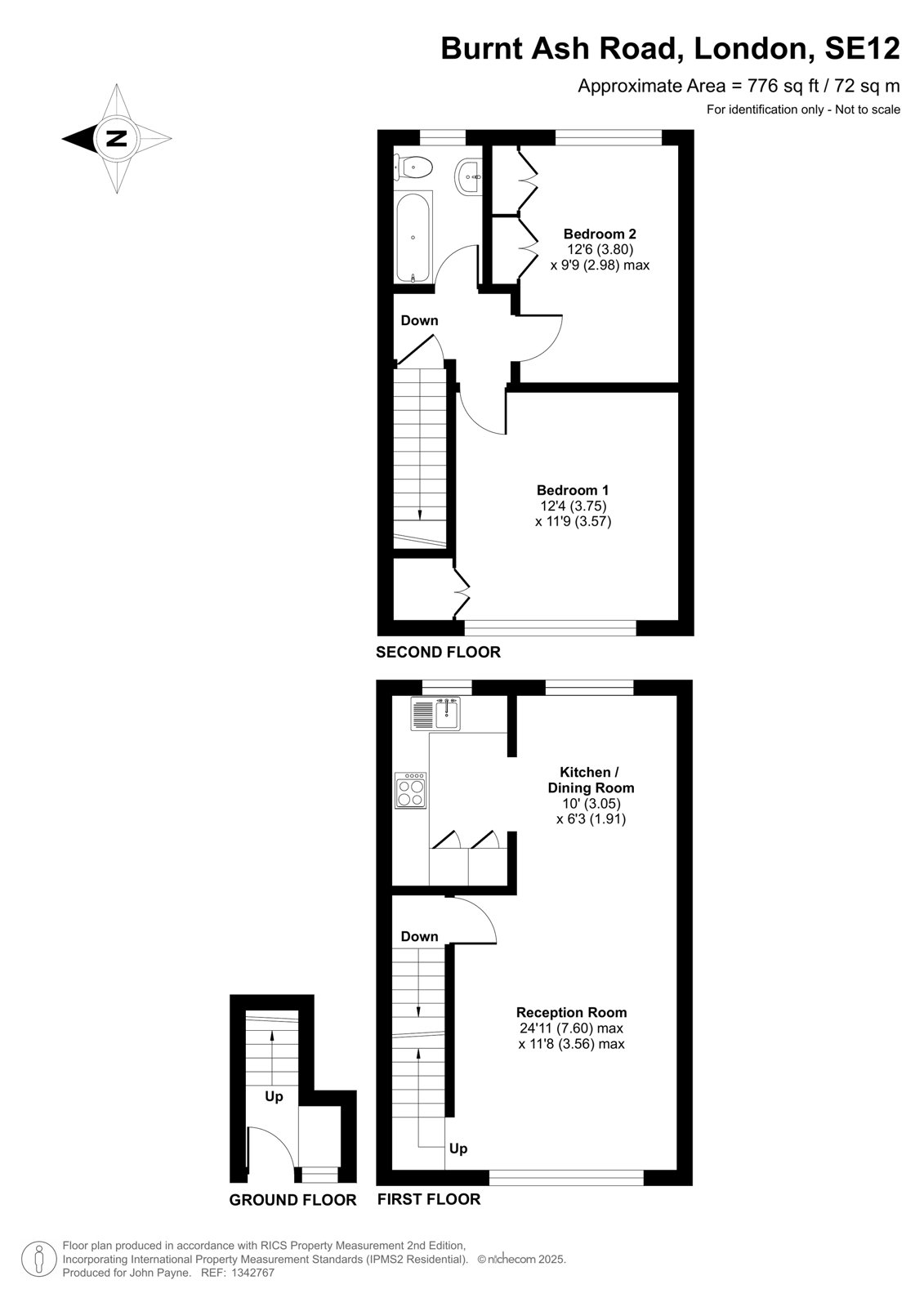
Accessed via a private entrance porch, the property opens to a wide staircase leading to the first floor, where you’ll find a bright, open-plan living and dining area. The space features hardwood flooring and neutral décor, complemented by a fitted contemporary kitchen, fully equipped for modern living.

Upstairs, the second floor offers two generously sized double bedrooms, both with built-in storage. The family bathroom includes a modern white suite with an over-bath shower. Additional storage is available via a loft, easily accessed by a ladder from the landing.
The location offers excellent transport links, with nearby Lee railway station and multiple bus routes along Burnt Ash Road, including the new SL4 Superloop service connecting Canary Wharf to Grove Park (launched 7 April 2025).

Local amenities include a wide selection of supermarkets, cafés, and restaurants in Lee, Blackheath, and Kidbrooke Villages. Residents can enjoy the open green spaces of Cator Park and Sutcliffe Park, both offering a variety of sports facilities. The David Lloyd Leisure Club is also just a short walk away, featuring swimming pools, tennis courts, and a gym.

There is a choice of excellent local schools, both state and independent, making this an ideal home for first-time buyers, small families, retired couples, or investors.

Internal viewing is highly recommended.

Lease - 999 years from 25th December 2001 (975 years remaining)
Service Charge - £679 PA
Ground Rent - N/A
London Borough of Lewisham - Council Tax Band - C
Energy Efficiency Rating - C

Talk to Chris Wadeson from John Payne (Estate agents in Lee)

 

Use our calculator to work out potential mortgage repayments and stamp duty costs. Please note, these calculators are for general interest only and must not be relied on. Speak to our Mortgage Scout team for further information and advice. 

Powered by

Total Mortgage

£

Estimated Monthly Mortgage Payment

£

  • Powered by

Lee Area Guide

Explore the areas we serve – from parks, entertainment and transport links, to shopping, eating and drinking.

Dive into property knowledge

Visit the AcornIntel knowledge-base, our library of articles to help you make sense of all things property, or send your questions to our panel of property experts.

Get your property valued

Looking to sell or let your property? Get a free property valuation from one of our experts.

Top