The Acorn Group is London’s largest multi-brand estate agency. We offer our clients the best brands, with the best people, in the best locations.

 

Close

Guide price £750,000 leasehold

Maisonette for sale - Brunswick Park, SE5

**GUIDE PRICE £750,000 - £775,000**

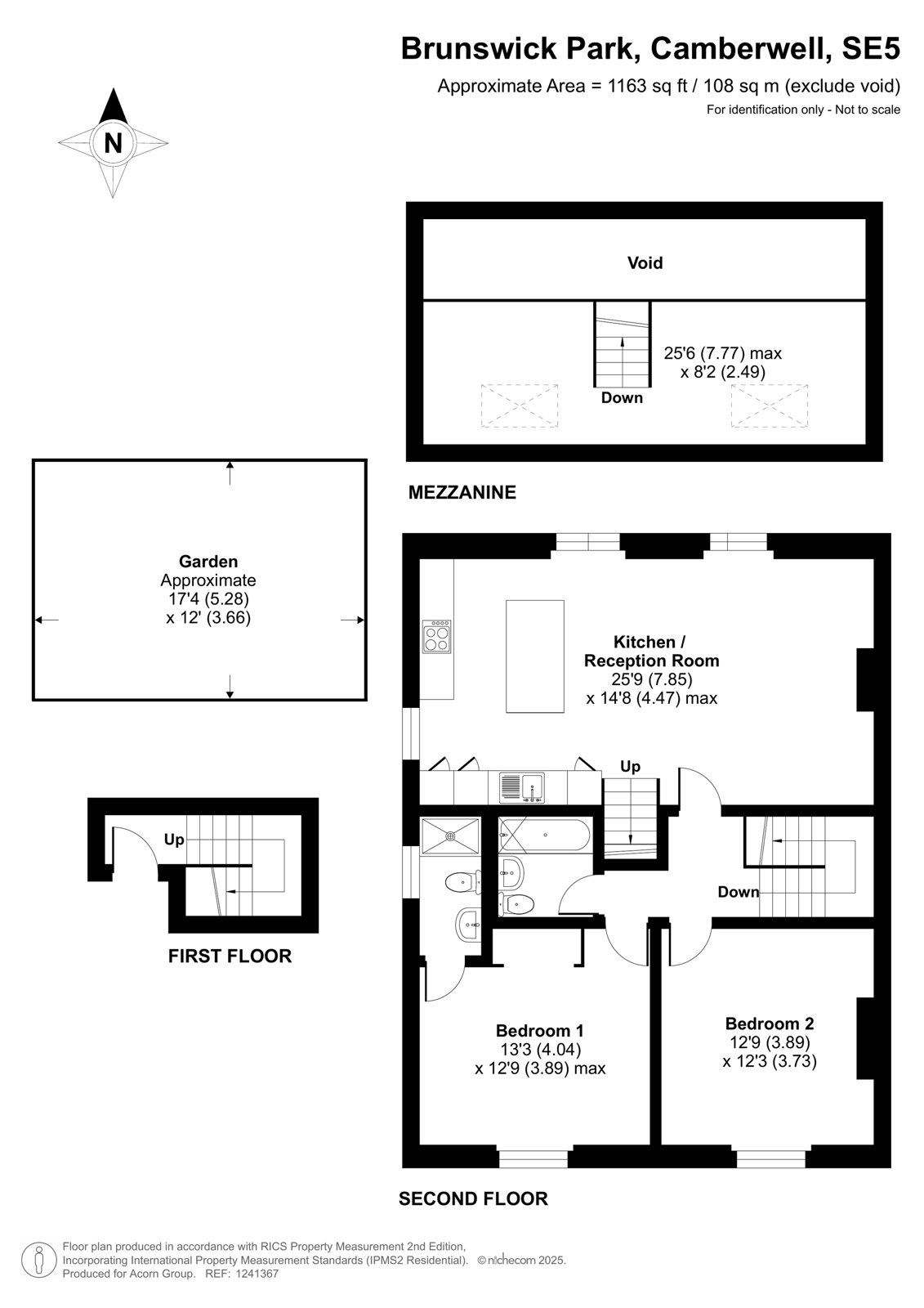
Acorn is pleased to present this rarely available two bedroom, two bathroom second floor period conversion overlooking the very popular Brunswick Park.

This attractive Georgian apartment oozes charm and offers well-proportioned living accommodation comprising of; a large open plan living space and kitchen that benefits from integrated appliances, a breakfast bar along with generous ceiling height, two genuine double bedrooms with the master bedroom having its own en-suite along with a separate modern three-piece family bathroom. Other benefits include the mezzanine which overlooks the living room and kitchen and offers multiple uses, i.e. a third bedroom/guest room or a home office space. This apartment also has a private south facing garden to the rear which is accessed via a gate to the side of the building.

Located on one of Camberwell’s premier roads, only a short walk from Camberwell High Street. Denmark Hill Station is a 0.5 miles walk away with excellent links into Victoria in under ten minutes and use of the East London Overground Line taking you to the City and Clapham Junction in under twenty minutes. This property is for someone with a creative mind. Please call our friendly team to arrange a viewing.

Lease Length 116 Years
Service Charge £1,320 (Bi Annual)
Ground Rent £495 PA

Talk to James Moss from Acorn (Estate agents in Camberwell)

 

Use our calculator to work out potential mortgage repayments and stamp duty costs. Please note, these calculators are for general interest only and must not be relied on. Speak to our Mortgage Scout team for further information and advice. 

Powered by

Total Mortgage

£

Estimated Monthly Mortgage Payment

£

  • Powered by

Camberwell Area Guide

Explore the areas we serve – from parks, entertainment and transport links, to shopping, eating and drinking.

Dive into property knowledge

Visit the AcornIntel knowledge-base, our library of articles to help you make sense of all things property, or send your questions to our panel of property experts.

Get your property valued

Looking to sell or let your property? Get a free property valuation from one of our experts.

Top