The Acorn Group is London’s largest multi-brand estate agency. We offer our clients the best brands, with the best people, in the best locations.

 

Close

Asking price £590,000 freehold

House for sale - Healy Drive, BR6

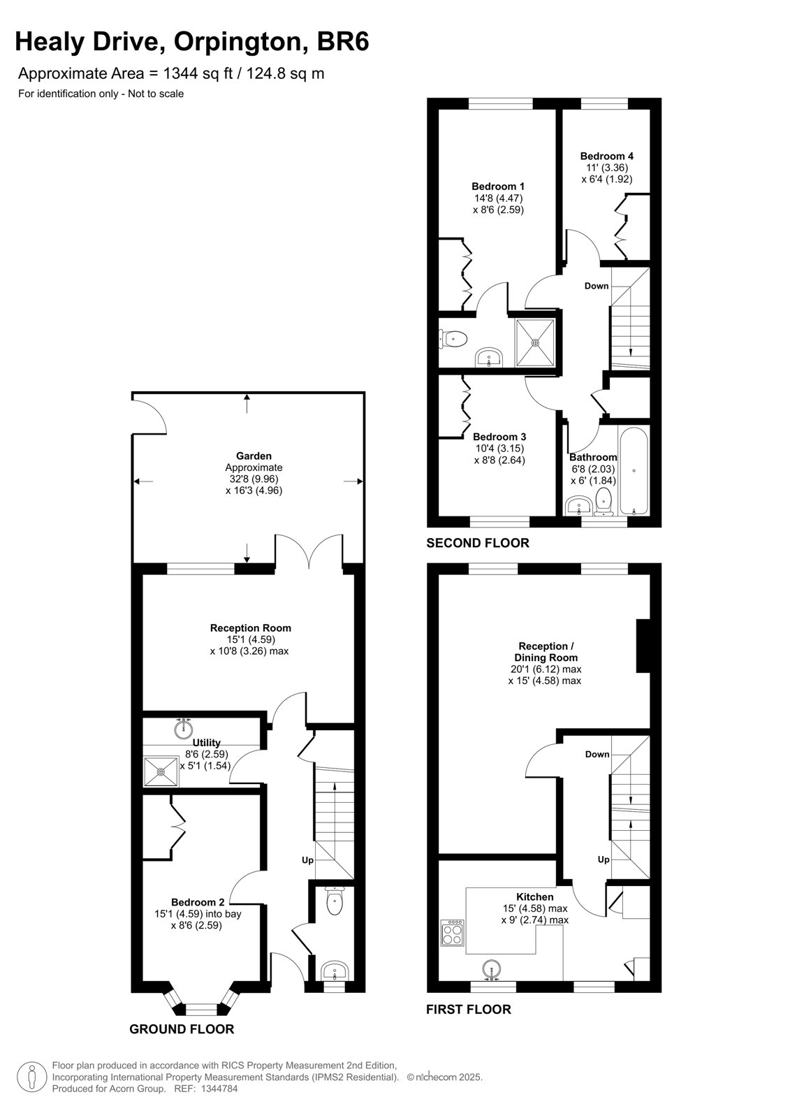
Langford Russell are delighted to present this superb four-bedroom family townhouse, located in a private development and within walking distance of both Warren Road School and Orpington Station.

The property is situated across three floors. To the ground floor comprises; an entrance hall that leads to a reception room with garden access, a double bedroom, a utility room with a shower plus WC.

To the first floor, you will find an open-plan reception / dining room with a feature fireplace, along with a recently updated kitchen that has integrated appliances such as oven/microwave, dishwasher and gas cooker.

The second floor hosts three bedrooms, including a principal bedroom featuring an en-suite shower room and further a three-piece family bathroom.

Externally, to the rear is a low-maintenance garden featuring astro turf, wooden plant borders and a garage with loft storage. To the front is a private parking space.

The property is conveniently located close to excellent transport links including Orpington Rail (0.7 miles) and Chelsfield Rail Station (2.2 miles) with direct services to London Bridge Station as well as the M25 just a 10 minute drive away. Some great local schools nearby including Warren Road Primary School (0.5 miles) St Olaves and St Saviours Grammar School (0.5 miles)

Freehold
London Borough Of Bromley - Council Tax Band - F
Energy Efficiency Rating - D

Talk to Oliver Pettman from Langford Russell (Estate agents in Orpington)

 

Use our calculator to work out potential mortgage repayments and stamp duty costs. Please note, these calculators are for general interest only and must not be relied on. Speak to our Mortgage Scout team for further information and advice. 

Powered by

Total Mortgage

£

Estimated Monthly Mortgage Payment

£

  • Powered by

Orpington Area Guide

Explore the areas we serve – from parks, entertainment and transport links, to shopping, eating and drinking.

Dive into property knowledge

Visit the AcornIntel knowledge-base, our library of articles to help you make sense of all things property, or send your questions to our panel of property experts.

Get your property valued

Looking to sell or let your property? Get a free property valuation from one of our experts.

Top