The Acorn Group is London’s largest multi-brand estate agency. We offer our clients the best brands, with the best people, in the best locations.

 

Close

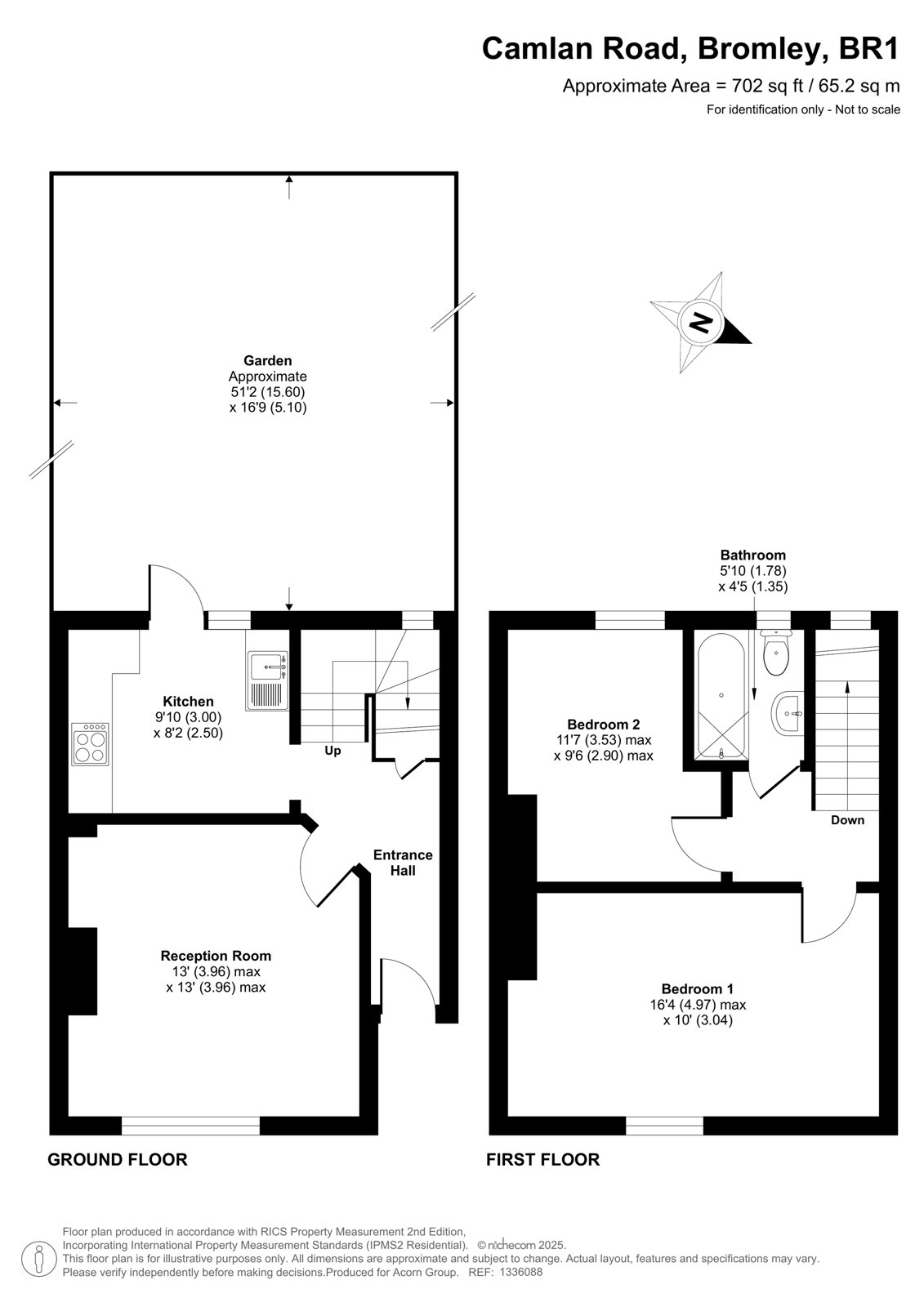
Asking price £375,000 freehold

House for sale - Camlan Road, BR1

Acorn are pleased to welcome to the market this two-bedroom mid-terrace home in BR1, this property is ideal for first-time buyers, investors, or those seeking a rewarding renovation project.

While in need of modernisation, the home boasts generous proportions and a solid layout. The ground floor features a bright front reception room, a fitted kitchen leading to direct access of the large 50ft rear garden — a fantastic blank canvas for outdoor entertaining or landscaping.
Upstairs, you’ll find two well-sized double bedrooms and a family three-piece bathroom, providing comfortable living space for couples, small families, or sharers.

This house is offering an excellent opportunity for buyers keen to add their own personal touch well-connected and increasingly popular area!.

Grove Park is perfect for anyone who travels regularly into the city with London Bridge being just 13 minutes away. There are also links to Waterloo East, Charing Cross and Cannon Street too! There are a number of reputable schools in the near area, as well as a plethora of amenities.

Talk to Jake Blackman from Acorn (Estate agents in Grove Park)

 

Use our calculator to work out potential mortgage repayments and stamp duty costs. Please note, these calculators are for general interest only and must not be relied on. Speak to our Mortgage Scout team for further information and advice. 

Powered by

Total Mortgage

£

Estimated Monthly Mortgage Payment

£

  • Powered by

Grove Park Area Guide

Explore the areas we serve – from parks, entertainment and transport links, to shopping, eating and drinking.

Dive into property knowledge

Visit the AcornIntel knowledge-base, our library of articles to help you make sense of all things property, or send your questions to our panel of property experts.

Get your property valued

Looking to sell or let your property? Get a free property valuation from one of our experts.

Top