The Acorn Group is London’s largest multi-brand estate agency. We offer our clients the best brands, with the best people, in the best locations.

 

Close

Asking price £325,000 freehold

End Of Terrace House for sale - Wellington Road, BR5

Tucked away and moments away from Orpington High Street is this impressive chain free, end of terrace home, ideal for first time buyers or buy to let investors.

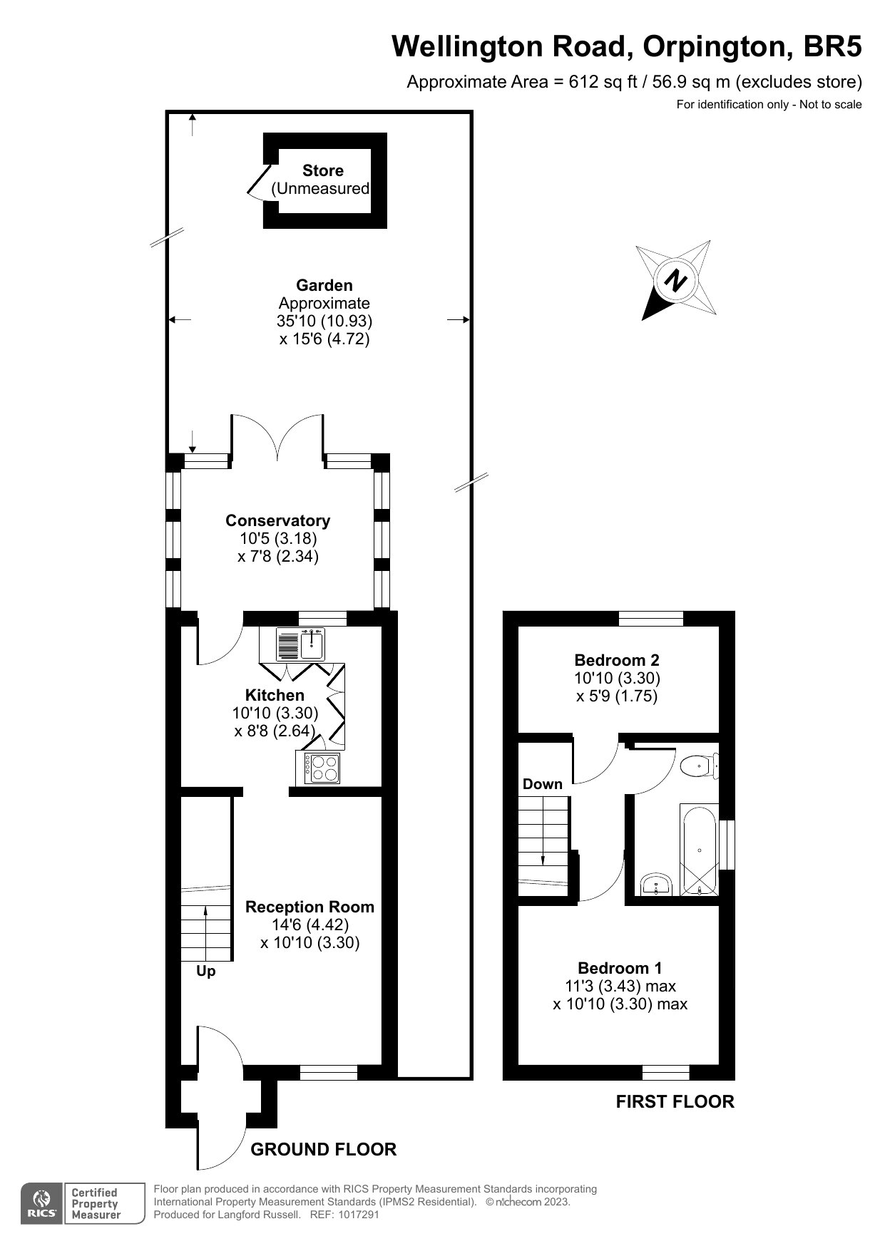
Internally the home comprises of two floors, on the ground floor a porch which leads to the bright reception room, the fully fitted kitchen, bright conversatatory. Upstairs has two bedrooms, one of which is a double and finally a fully tiled three-piece family bathroom.

Other benefits include off street parking, private south-easterly facing garden and potential to extend (subject to necessary planning permission).

This property is conveniently located just (1 miles) from St Mary Cray Railway Station, and Orpington Station (1.5 miles) with direct connections to Waterloo, Charing Cross, Victoria and St Pancras. Orpington High street is located just (0.5 miles) and some super selective high achieving grammar schools nearby including Newstead Woods for Girls and St Olave’s for Boys, both located in Orpington.

Tenure Freehold
Local Authority Bromley Band C
Energy Efficiency Rating C

Talk to Oliver Pettman from Langford Russell (Estate agents in Orpington)

 

Use our calculator to work out potential mortgage repayments and stamp duty costs. Please note, these calculators are for general interest only and must not be relied on. Speak to our Mortgage Scout team for further information and advice. 

Powered by

Total Mortgage

£

Estimated Monthly Mortgage Payment

£

  • Powered by

Orpington Area Guide

Explore the areas we serve – from parks, entertainment and transport links, to shopping, eating and drinking.

Dive into property knowledge

Visit the AcornIntel knowledge-base, our library of articles to help you make sense of all things property, or send your questions to our panel of property experts.

Get your property valued

Looking to sell or let your property? Get a free property valuation from one of our experts.

Top