The Acorn Group is London’s largest multi-brand estate agency. We offer our clients the best brands, with the best people, in the best locations.

 

Close

Asking price £295,000 freehold

End Of Terrace House for sale - Wellington Road, BR5

Langford Russell are delighted to offer this charming, chain free, two double bedroom end-of-terrace Victorian-style home, ideally located for St Mary Cray Station and the Nugent Shopping Centre.

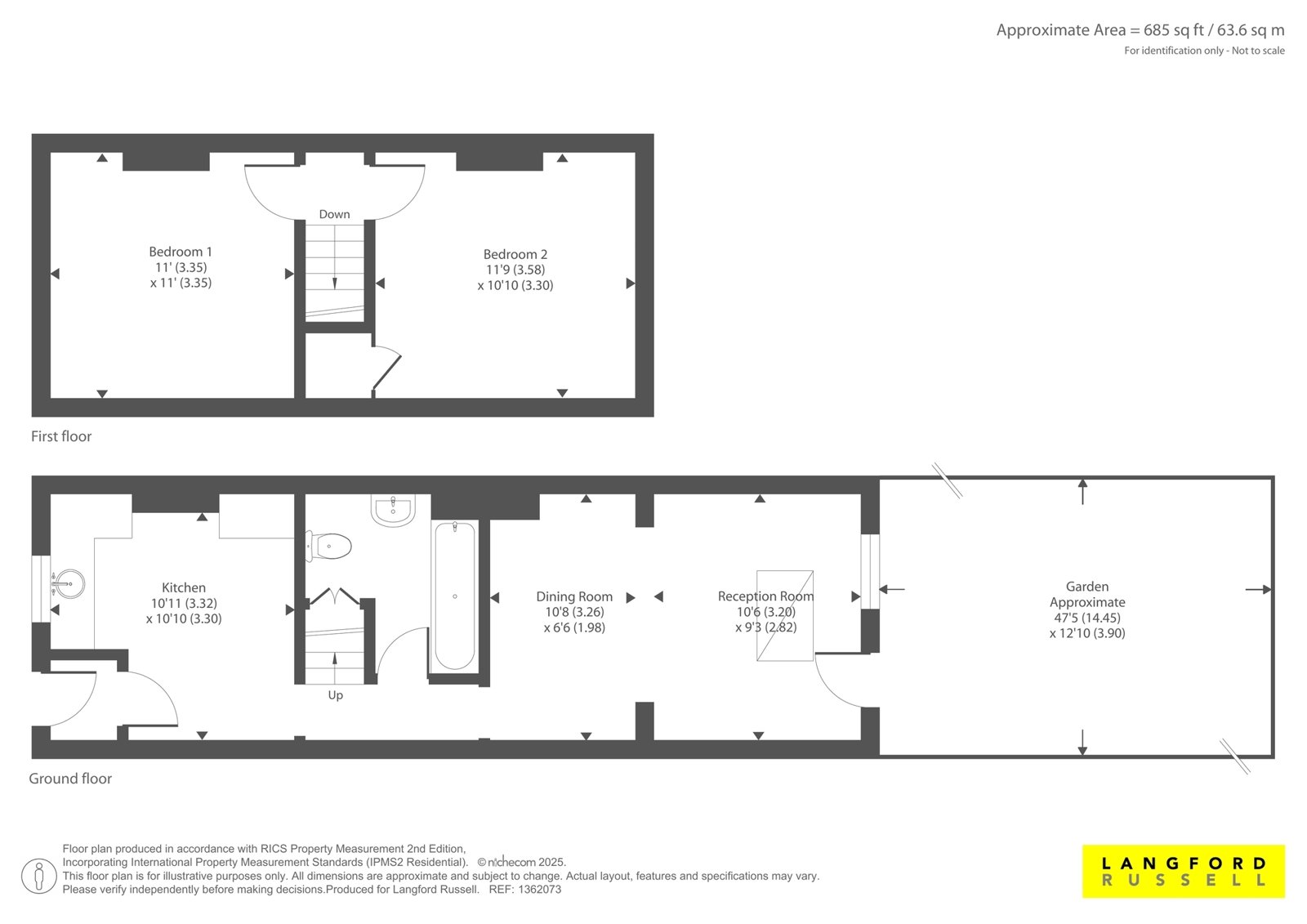
This well-proportioned property is perfect for first-time buyers or investors alike. The ground floor comprises a bright reception room with front aspect window, a separate dining room, and a fitted kitchen with access to a generous rear garden, measuring approximately 47 ft in length. A modern bathroom is also located on the ground floor, conveniently positioned off the central hallway.

Upstairs, the home offers two spacious double bedrooms, both enjoying excellent natural light and flexible space for wardrobes or additional furniture.

Externally, the property benefits from a good-sized private rear garden, ideal for outdoor entertaining, and a small front courtyard offering bin storage or additional curb appeal potential with a gate.

The home is conveniently situated just 0.8 miles from St Mary Cray Railway Station, offering swift links to London Victoria and Blackfriars. Orpington Station is also within easy reach (1.6 miles), providing fast services into central London. Local bus routes connect the area to Orpington town centre, Sidcup, and Bromley.

Families will appreciate the proximity to well-regarded local schools, including St Mary Cray Primary School (0.1 miles away) and a selection of highly rated grammar schools in nearby Orpington.

This is a fantastic opportunity to secure a characterful period home in a well-connected, family-friendly location.

Tenure – Freehold
London Borough of Bromley – Council Tax Band: C

Talk to Oliver Pettman from Langford Russell (Estate agents in Orpington)

 

Use our calculator to work out potential mortgage repayments and stamp duty costs. Please note, these calculators are for general interest only and must not be relied on. Speak to our Mortgage Scout team for further information and advice. 

Powered by

Total Mortgage

£

Estimated Monthly Mortgage Payment

£

  • Powered by

Orpington Area Guide

Explore the areas we serve – from parks, entertainment and transport links, to shopping, eating and drinking.

Dive into property knowledge

Visit the AcornIntel knowledge-base, our library of articles to help you make sense of all things property, or send your questions to our panel of property experts.

Get your property valued

Looking to sell or let your property? Get a free property valuation from one of our experts.

Top