The Acorn Group is London’s largest multi-brand estate agency. We offer our clients the best brands, with the best people, in the best locations.

 

Close

Guide price £400,000 freehold

End Of Terrace House for sale - Tristram Road, BR1

** GUIDE PRICE £400,000 - £425,000 **

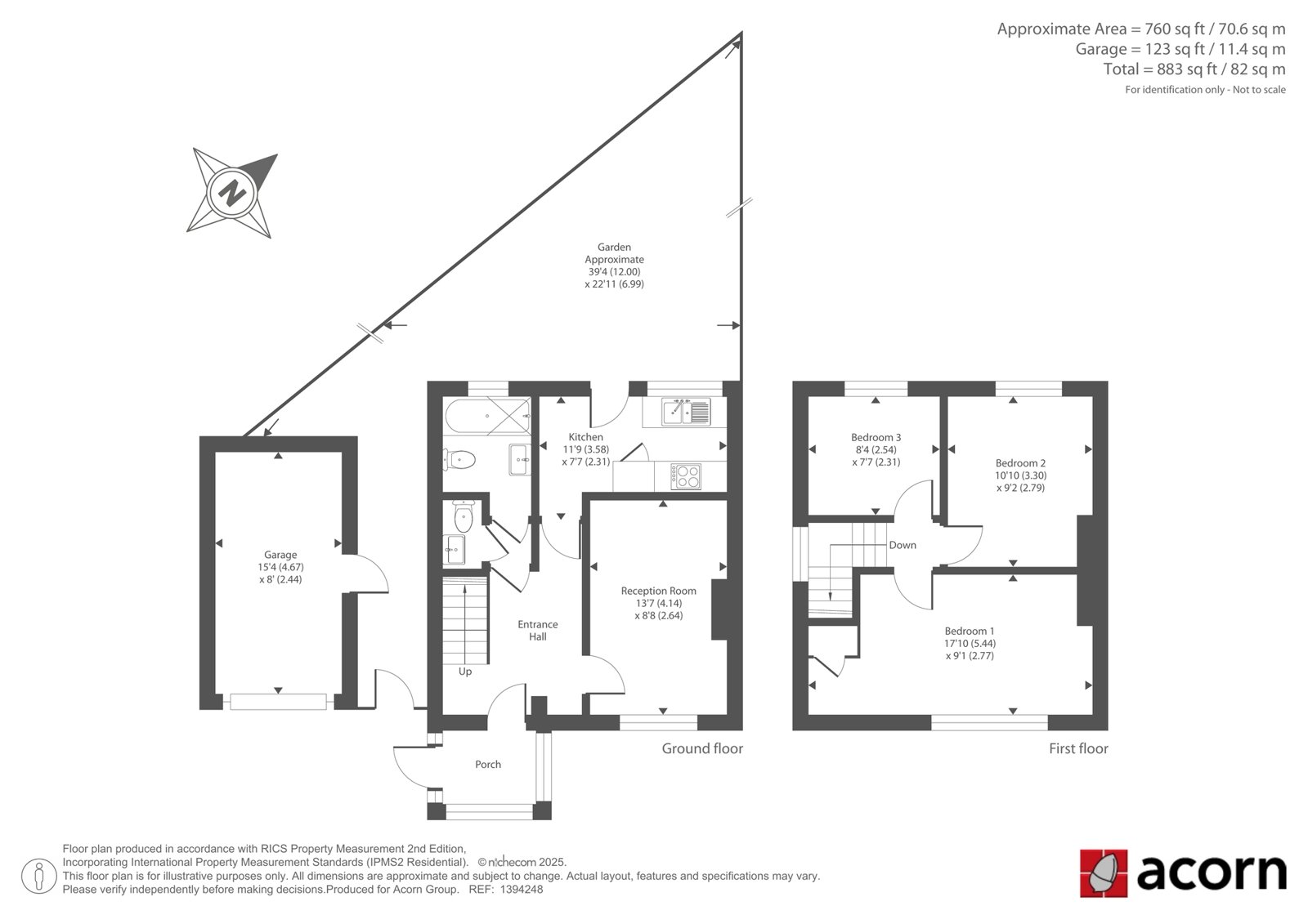
Acorn are pleased to welcome to the market, this refurbished three-bedroom end of terrace house is located on the popular Tristian Road in SE12. The property offers bright and modern accommodation ideal for families and first-time buyers.

The ground floor comprises a spacious reception room and a contemporary fitted kitchen/dining area. Upstairs are three well-proportioned bedrooms and a modern family bathroom. As an end of terrace home, the property benefits from additional natural light and privacy.

Further features include a private rear garden and close proximity to local amenities, schools, parks, and excellent transport links. A fantastic opportunity to purchase a turnkey home in a sought-after location.

Lewisham Council - Council Tax Band - C
Energy Efficiency Rating - D

Talk to Jake Blackman from Acorn (Estate agents in Grove Park)

 

Use our calculator to work out potential mortgage repayments and stamp duty costs. Please note, these calculators are for general interest only and must not be relied on. Speak to our Mortgage Scout team for further information and advice. 

Powered by

Total Mortgage

£

Estimated Monthly Mortgage Payment

£

  • Powered by

Grove Park Area Guide

Explore the areas we serve – from parks, entertainment and transport links, to shopping, eating and drinking.

Dive into property knowledge

Visit the AcornIntel knowledge-base, our library of articles to help you make sense of all things property, or send your questions to our panel of property experts.

Get your property valued

Looking to sell or let your property? Get a free property valuation from one of our experts.

Top