The Acorn Group is London’s largest multi-brand estate agency. We offer our clients the best brands, with the best people, in the best locations.

 

Close

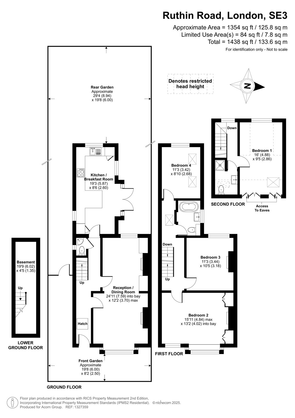
Guide price £1,150,000 freehold

End Of Terrace House for sale - Ruthin Road, SE3

* GUIDE PRICE £1,150,000 - £1,175,000*

Situated on a peaceful residential street in the heart of Westcombe Park, this elegant four-bedroom Victorian end-of-terrace house has been thoughtfully extended and tastefully refurbished to a high standard. Spanning three well-proportioned floors, the property offers bright, spacious, and versatile living accommodation ideal for modern family life.

The ground floor features a generous double reception room, perfect for both relaxing and entertaining. To the rear, a stylish and contemporary fitted kitchen includes ample space for dining and opens out onto a private rear garden—an ideal space for alfresco dining and outdoor enjoyment. A convenient ground floor WC completes this level.

On the first floor, you’ll find three comfortable bedrooms along with a modern family bathroom. The top floor hosts a superb loft-converted principal bedroom with its own en-suite shower room, providing a tranquil retreat.

This home is exceptionally well-connected, with Westcombe Park station offering direct services to London Bridge, Cannon Street, and Thameslink destinations. The nearby Greenwich Village area boasts DLR links from Cutty Sark station and riverboat services via the Thames Clippers. North Greenwich (Jubilee Line) and fast Elizabeth Line connections from nearby Woolwich further enhance the excellent transport links.

Royal Borough of Greenwich Council Tax: Band D | Energy Efficiency: Rating D

Talk to Will McElligott from John Payne (Estate agents in Blackheath Standard)

 

Use our calculator to work out potential mortgage repayments and stamp duty costs. Please note, these calculators are for general interest only and must not be relied on. Speak to our Mortgage Scout team for further information and advice. 

Powered by

Total Mortgage

£

Estimated Monthly Mortgage Payment

£

  • Powered by

Blackheath Standard Area Guide

Explore the areas we serve – from parks, entertainment and transport links, to shopping, eating and drinking.

Dive into property knowledge

Visit the AcornIntel knowledge-base, our library of articles to help you make sense of all things property, or send your questions to our panel of property experts.

Get your property valued

Looking to sell or let your property? Get a free property valuation from one of our experts.

Top