The Acorn Group is London’s largest multi-brand estate agency. We offer our clients the best brands, with the best people, in the best locations.

 

Close

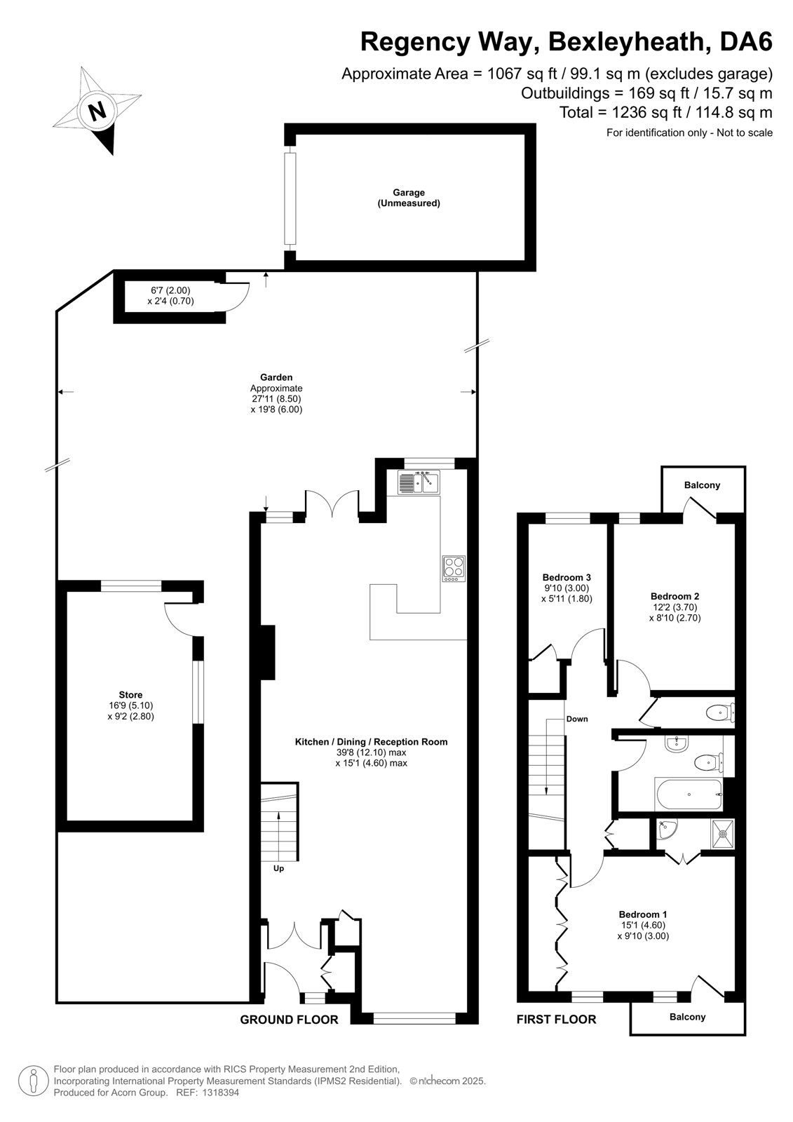
Asking price £500,000 freehold

End Of Terrace House - Regency Way, DA6

Nestled on the sought-after Regency Way, this beautifully renovated Neo-Georgian end-of-terrace offers a rare blend of classical curb appeal and contemporary living across more than 1,200 sq ft of internal and ancillary space. With its timeless façade, generous layout, and high-spec finish throughout, this three-bedroom home is ideal for buyers seeking space, style, and substance in equal measure.

Step inside to discover a recently refurbished interior, centred around a spectacular full-depth kitchen dining reception room measuring over 39 feet. Designed with modern living in mind, the open-plan layout flows effortlessly from front to back, with natural light pouring in and direct access to the private rear garden. Outside, you'll find a detached garage and a substantial brick-built store, ideal for conversion to a gym, studio, or home office (STPP).

Upstairs, the accommodation continues to impress. The principal bedroom is a true retreat, full-width, beautifully proportioned, and complete with its own private balcony and a sleek ensuite shower room. Two further bedrooms, one also benefitting from its own balcony, are served by a contemporary family bathroom and an additional WC, making the home as practical as it is stylish.

As an end-of-terrace, the property enjoys additional natural light, side access, and a broader footprint than its mid-terrace neighbours. The architectural styling nods to Georgian symmetry and proportion, while the recent updates bring it firmly into the 21st century.

Ideally located, Regency Way is within easy reach of Bexleyheath Station, offering regular trains into London Bridge, Cannon Street and Charing Cross. For road links, the A2 and M25 are conveniently close. Local amenities include the vibrant Broadway Shopping Centre, acres of green space at Danson Park, and an excellent selection of schools including the highly regarded Townley Grammar.

A refined, turn-key home in one of Bexleyheath’s most established neighbourhoods, this is classic living reimagined.

Talk to Daniel Langiano from Acorn (Estate agents in Bexleyheath)

 

Use our calculator to work out potential mortgage repayments and stamp duty costs. Please note, these calculators are for general interest only and must not be relied on. Speak to our Mortgage Scout team for further information and advice. 

Powered by

Total Mortgage

£

Estimated Monthly Mortgage Payment

£

  • Powered by

Bexleyheath Area Guide

Explore the areas we serve – from parks, entertainment and transport links, to shopping, eating and drinking.

Dive into property knowledge

Visit the AcornIntel knowledge-base, our library of articles to help you make sense of all things property, or send your questions to our panel of property experts.

Get your property valued

Looking to sell or let your property? Get a free property valuation from one of our experts.

Top