The Acorn Group is London’s largest multi-brand estate agency. We offer our clients the best brands, with the best people, in the best locations.

 

Close

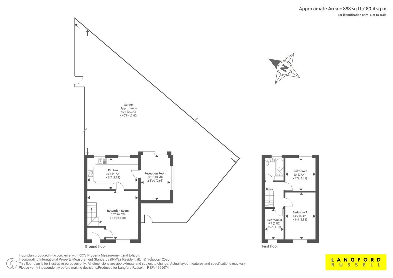
Asking price £485,000 freehold

End Of Terrace House for sale - Queenswood Road, DA15

Langford Russell are delighted to market this well presented three-bedroom, end of terraced family home, offered to the market chain free and situated on a popular residential road in Sidcup.

Internally, the property comprises; a spacious entrance hall, spacious reception room, fitted kitchen and a dining room. The first floor offers a spacious main bedroom, a second smaller bedroom, a third room and main family bathroom.

Externally, the property benefits from a east-facing rear garden with a separate garage, to the front of the property, there is residents parking.

The property also offers extension potential, subject to relevant planning permissions being obtained.

The location offers families an excellent schooling catchment for primary and secondary school children, including Our Lady of the Rosary, Alderwood Primary, Marlborough School, Harris Academy, Bishop Ridley, Burnt Oak Junior School, Danson Primary, Chatsworth Infant School, Hook Lane Primary, Holy Trinity, Bexley Grammar School, Blackfen School for Girls and a range of other highly regarded schools in the area. Commuters also benefit from close proximity of three stations, including Falconwood Station (0.9 miles), Welling Station (1.1 miles), and Sidcup Station (1.2 miles). There are also excellent bus links to Eltham Station, New Eltham Station, Sidcup Station, North Greenwich tube services and the Elizabeth Line via Woolwich.

Tenure – Freehold | Energy Efficiency Rating - D | Council Tax London Borough Of Bexley Band - D

Talk to Jack Power from Langford Russell (Estate agents in Sidcup)

 

Use our calculator to work out potential mortgage repayments and stamp duty costs. Please note, these calculators are for general interest only and must not be relied on. Speak to our Mortgage Scout team for further information and advice. 

Powered by

Total Mortgage

£

Estimated Monthly Mortgage Payment

£

  • Powered by

Sidcup Area Guide

Explore the areas we serve – from parks, entertainment and transport links, to shopping, eating and drinking.

Dive into property knowledge

Visit the AcornIntel knowledge-base, our library of articles to help you make sense of all things property, or send your questions to our panel of property experts.

Get your property valued

Looking to sell or let your property? Get a free property valuation from one of our experts.

Top