The Acorn Group is London’s largest multi-brand estate agency. We offer our clients the best brands, with the best people, in the best locations.

 

Close

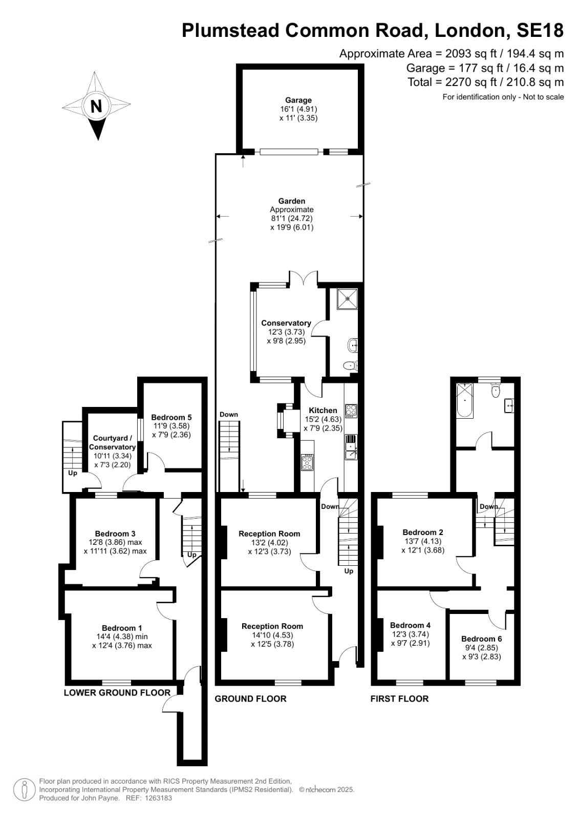
Asking price £749,995 freehold

End Of Terrace House - Plumstead Common Road, London, SE18

Offered to the market chain free and spread over 2000 Sq Ft is this brick fronted six bedroom, two bathroom, two reception room, end of terrace period home, overlooking Plumstead Common. Convenient for local shops, schools, bus routes and access into Woolwich.

Currently used as a HMO this property is over 2000 sq. ft and spread over three levels. On the Ground floor you will find two reception rooms with double glazed windows and wood laminate flooring. There is a 15ft fitted kitchen with a range of wall and base units with complimentary work surfaces. A 12ft conservatory overlooking the rear garden and a ground floor shower room. Fitted with a walk in shower cubicle, low level WC and pedestal wash hand basin.

On the lower ground floor you will find three bedrooms. All with wood laminate flooring and double glazed windows. There is access to a courtyard/lean to which also gives access to the rear garden via a staircase and there is a door leading to the front of the property.

On the first floor you will find a further three bedrooms all with double glazed windows and wood laminate flooring. There is also a three piece bathroom suite comprising a low level WC, wash hand basin and bath with shower over.

Externally there is an 80ft rear garden mainly laid to lawn with 16ft garage to the rear. Access via a shared access road subject to legal verification.

Properties of this size very rarely come onto the market and internal viewings are strongly recommended to appreciate the sheer size of the house.

Talk to William Chidley from John Payne (Estate agents in Plumstead Common)

 

Use our calculator to work out potential mortgage repayments and stamp duty costs. Please note, these calculators are for general interest only and must not be relied on. Speak to our Mortgage Scout team for further information and advice. 

Powered by

Total Mortgage

£

Estimated Monthly Mortgage Payment

£

  • Powered by

Area Guide

Explore the areas we serve – from parks, entertainment and transport links, to shopping, eating and drinking.

Dive into property knowledge

Visit the AcornIntel knowledge-base, our library of articles to help you make sense of all things property, or send your questions to our panel of property experts.

Get your property valued

Looking to sell or let your property? Get a free property valuation from one of our experts.

Top