The Acorn Group is London’s largest multi-brand estate agency. We offer our clients the best brands, with the best people, in the best locations.

 

Close

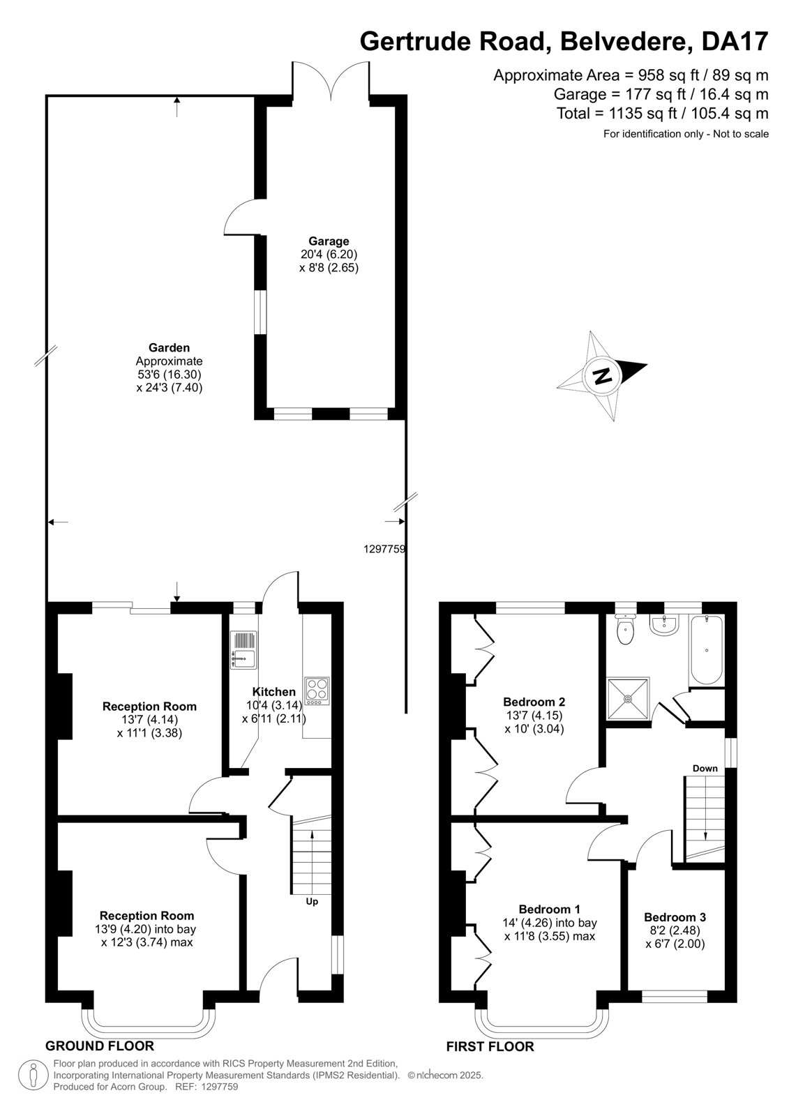
Asking price £425,000 freehold

End Of Terrace House - Gertrude Road, DA17

This family home is located within a quiet residential road in between Belvedere Station & Nuxley Village, the accommodation offers an impressive 958sqft of floorspace with tons of potential to add value. As you enter the broad hallway, you’ll find the front reception room on the left with a charming fireplace and bay window oozing natural light through.

Next along is the separate dining room which has the potential to be knocked through either into the reception room or/and kitchen to create an open plan dynamic. The galley kitchen is fitted with some integrated appliances and offers plenty of storage and worktop space with direct access to the garden.

The garden is huge which allows for a rear extension to be added (STPP) without feeling like you’re comprising any space, there is a garage to the rear serviced via a lane (at the back) and additional side access from the side of the house (ideal for works to be done).

Upstairs offers a traditional layout with access to three bedrooms, two doubles and a generous single, as well as the family bathroom suite which currently has a four-piece set up.

This home is a great opportunity and blank canvas for the future homeowner to add their own stamp and add some value! There’re loads of potential to extend into the loft and rear extension (STPP) to create more space and change the layout downstairs to suit your needs. Additional benefits include gas central heating, double glazing, potential for a driveway (council approval needed) and offered to the market chain free!

Gertrude Road is superbly located with plenty of local amenities nearby! Nuxley Village 0.6m offers a range of shops which includes coffee shops, cafes, boutique stores, takeaways, and a local Co-op & Sainsburys. There is also a great choice of parks to enjoy with Belvedere Beach & Recreation Grounds, Frank’s park or Lesnes Abbey Woods which host events and has interesting history of being an important site for early Tertiary fossils. For commuters, Belvedere Station is 0.3m walk which operates the Southeastern Line into London Bridge and is one stop away from Abbey Wood with the new Elizabeth Line which has even more options into the city, fast and frequently!

We expect this property to be a popular choice, please give us a call to arrange a viewing or ask any questions on 01322478333.

Talk to Arikson Franco from Acorn (Estate agents in Belvedere)

 

Use our calculator to work out potential mortgage repayments and stamp duty costs. Please note, these calculators are for general interest only and must not be relied on. Speak to our Mortgage Scout team for further information and advice. 

Powered by

Total Mortgage

£

Estimated Monthly Mortgage Payment

£

  • Powered by

Belvedere Area Guide

Explore the areas we serve – from parks, entertainment and transport links, to shopping, eating and drinking.

Dive into property knowledge

Visit the AcornIntel knowledge-base, our library of articles to help you make sense of all things property, or send your questions to our panel of property experts.

Get your property valued

Looking to sell or let your property? Get a free property valuation from one of our experts.

Top