The Acorn Group is London’s largest multi-brand estate agency. We offer our clients the best brands, with the best people, in the best locations.

 

Close

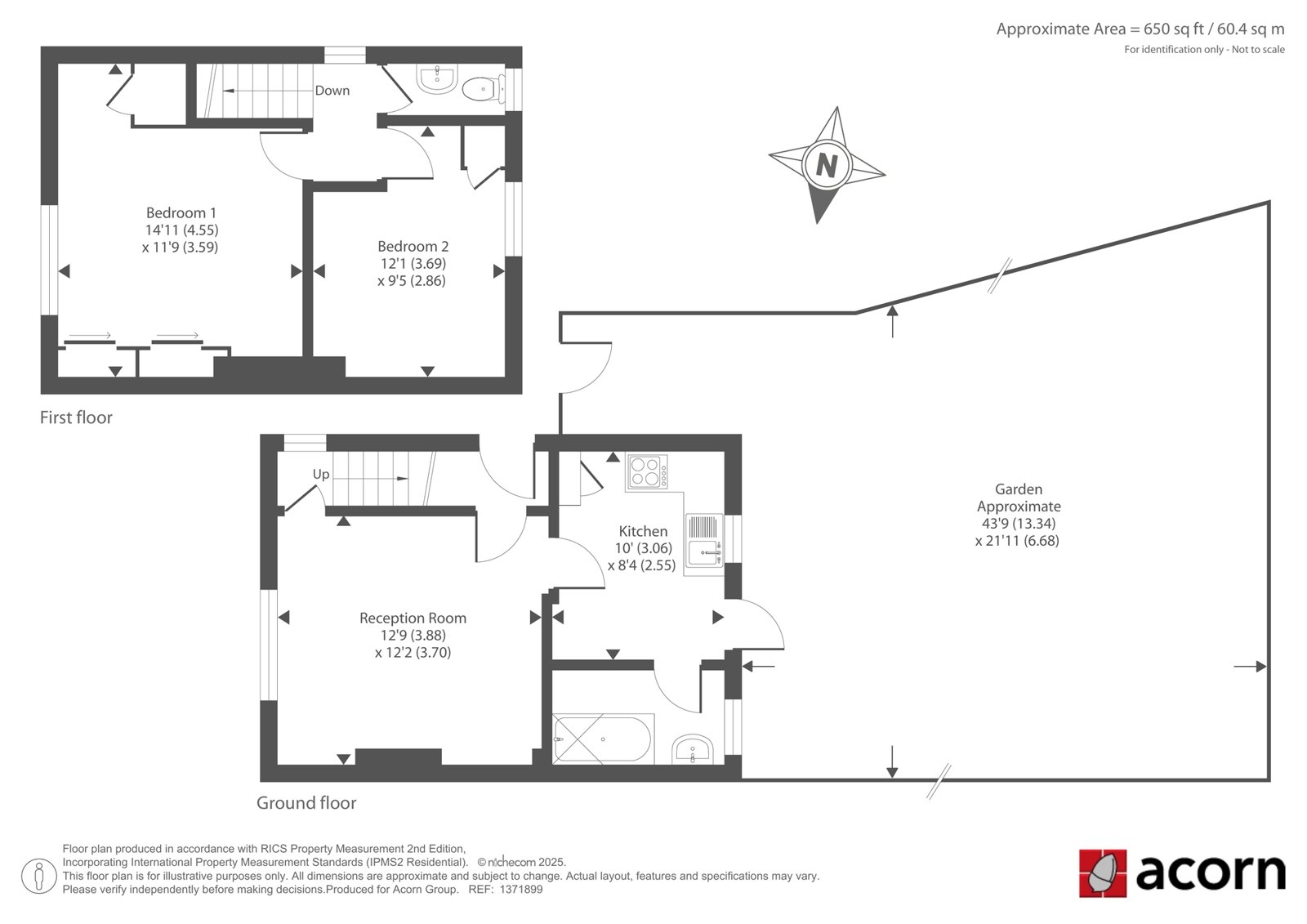
Asking price £375,000 freehold

End Of Terrace House - Galahad Road, BR1

Acorn are delighted to welcome to the market this Chain free end of terrace freehold property, sat on a larger than average plot.

Within walking distance of Grove Park Station, the house is in need of some TLC but represents a fantastic first time purchase on a popular road.

The ground floor comprises large lounge, bathroom and fitted kitchen. The first floor comprises two double bedrooms and WC.

Externally, the property boasts both front and rear gardens. The front garden has the potential to create off street parking, whereas the rear garden offers the potential to create a good size extension, both of course subject to planning permissions.

Talk to Jake Blackman from Acorn (Estate agents in Grove Park)

 

Use our calculator to work out potential mortgage repayments and stamp duty costs. Please note, these calculators are for general interest only and must not be relied on. Speak to our Mortgage Scout team for further information and advice. 

Powered by

Total Mortgage

£

Estimated Monthly Mortgage Payment

£

  • Powered by

Grove Park Area Guide

Explore the areas we serve – from parks, entertainment and transport links, to shopping, eating and drinking.

Dive into property knowledge

Visit the AcornIntel knowledge-base, our library of articles to help you make sense of all things property, or send your questions to our panel of property experts.

Get your property valued

Looking to sell or let your property? Get a free property valuation from one of our experts.

Top