The Acorn Group is London’s largest multi-brand estate agency. We offer our clients the best brands, with the best people, in the best locations.

 

Close

Asking price £300,000 freehold

End Of Terrace House for sale - Darnley Road, ME2

***CHAIN FREE INVESTMENT OPPORTUNITY***

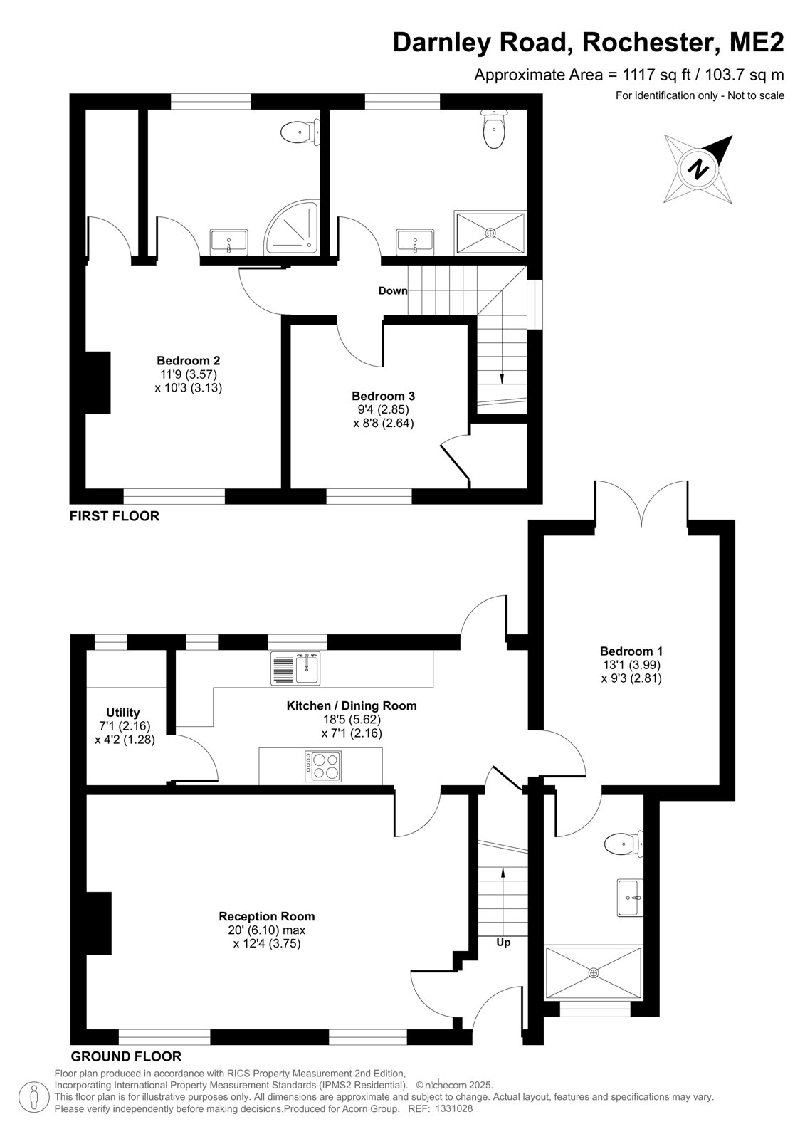
This end of terrace property comprises a living room, a kitchen/diner to the rear and bedroom three with en-suite on the ground floor. On the first floor you will find a family bathroom, main bedroom with its en-suite and the third bedroom.

The property has the convenience of a utility room next to the kitchen/diner and is with a close proximity to the town centre which consists of an array of shops, supermarkets and the mainline railway station.

The property is currently let on two separate assured shorthold tenancies achieving a total rent of £1,442.72 PCM and is suitable for purchase by investors only.

Call Acorn today to secure your viewing appointment on 01634 969678.

Tenure – Freehold
Energy Efficiency Rating D
Council Tax Band C

Talk to Mark Sugarman from Acorn (Estate agents in Strood)

 

Use our calculator to work out potential mortgage repayments and stamp duty costs. Please note, these calculators are for general interest only and must not be relied on. Speak to our Mortgage Scout team for further information and advice. 

Powered by

Total Mortgage

£

Estimated Monthly Mortgage Payment

£

  • Powered by

Strood Area Guide

Explore the areas we serve – from parks, entertainment and transport links, to shopping, eating and drinking.

Dive into property knowledge

Visit the AcornIntel knowledge-base, our library of articles to help you make sense of all things property, or send your questions to our panel of property experts.

Get your property valued

Looking to sell or let your property? Get a free property valuation from one of our experts.

Top