The Acorn Group is London’s largest multi-brand estate agency. We offer our clients the best brands, with the best people, in the best locations.

 

Close

Guide price £675,000 freehold

End Of Terrace House for sale - Beaulieu Avenue, SE26

**Guide Price £675,000 - £700,000**

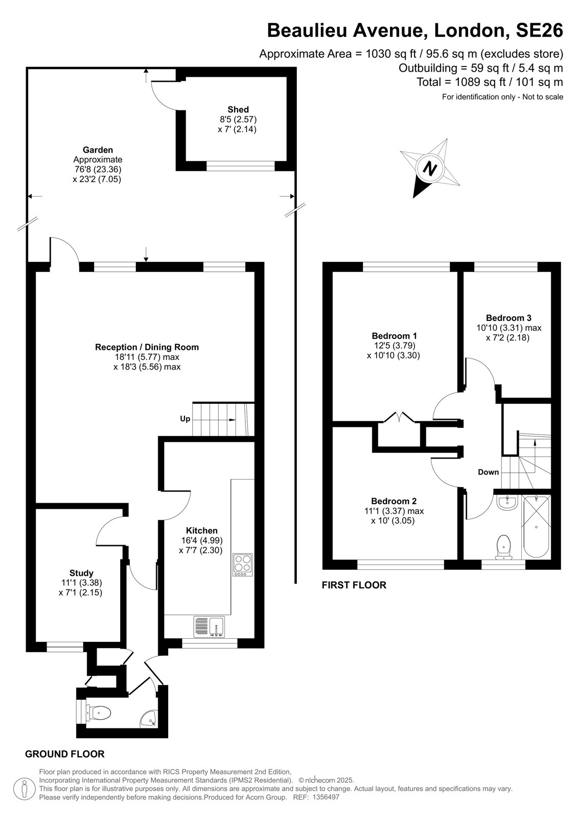
This beautifully presented four-bedroom end-of-terrace house offers approximately 1,030 square feet of thoughtfully designed living space in a highly desirable location. The property has been finished to an exceptional standard, combining modern comforts with tasteful design, making it an ideal home for families or professionals seeking both style and practicality.

Upon entering the house, the ground floor reveals a welcoming study room, perfect for working from home, along with a convenient downstairs WC. The bespoke kitchen has been carefully designed with high-quality fittings and provides a stylish yet functional space for cooking. To the rear, a spacious living and dining room with newly refurbished parquet flooring. Creating a natural hub for family life, opening directly onto the recently landscaped private garden. This outdoor area has been designed with both relaxation and entertaining in mind, featuring lighting and electricity as well as ample space for outdoor dining.

The first floor comprises three well-proportioned bedrooms, all filled with natural light, together with a modern family bathroom. Adding character and warmth throughout, while the overall design reflects a refined sense of style.

Externally, the property benefits from off-street parking and practical bike storage, offering convenience and security. Its location provides easy access to nearby green spaces and excellent transport links, ensuring a balance between peaceful surroundings and connectivity.

This home presents an outstanding opportunity to acquire a thoughtfully refurbished and tastefully designed property in a sought-after area, ready for immediate enjoyment.

Freehold
EPC Rating C
Council Tax Band D

Talk to Harrison White from Acorn (Estate agents in Sydenham)

 

Use our calculator to work out potential mortgage repayments and stamp duty costs. Please note, these calculators are for general interest only and must not be relied on. Speak to our Mortgage Scout team for further information and advice. 

Powered by

Total Mortgage

£

Estimated Monthly Mortgage Payment

£

  • Powered by

Sydenham Area Guide

Explore the areas we serve – from parks, entertainment and transport links, to shopping, eating and drinking.

Dive into property knowledge

Visit the AcornIntel knowledge-base, our library of articles to help you make sense of all things property, or send your questions to our panel of property experts.

Get your property valued

Looking to sell or let your property? Get a free property valuation from one of our experts.

Top