The Acorn Group is London’s largest multi-brand estate agency. We offer our clients the best brands, with the best people, in the best locations.

 

Close

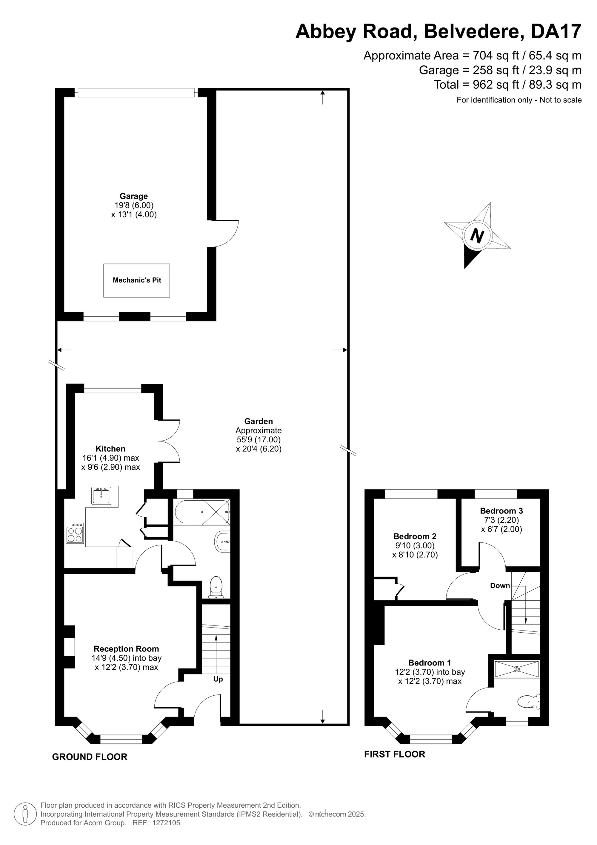
Guide price £425,000 freehold

End Of Terrace House - Abbey Road, DA17

*Guide Price £425,000 to £435,000*

Viewings Saturday 13th - Call For An Appoitment.

Sitting at a raised level is this imposing family home beautifully presented throughout in Belvedere, near Nuxley Village.

The accommodation offers 704sqft of floorspace which has been tastefully renovated by the owners to suit modern living. As you enter, you’ll find the front cosy reception room on the left which features a charming bay window and a feature fireplace. Further along is a newly renovated family bathroom suite, smartly presented with tiling across the walls and floor. Alongside is the impressive kitchen-diner, stylishly designed with plenty of worktop space and fitted with integrated appliances, under-lighting, and matching wall units across the walls. There’s an additional rear extension currently used as the dining area and part of the kitchen to create a nice open space!

This room overlooks and leads out to a South facing landscaped garden which is a suntrap throughout the day and benefits from a huge, detached garage - ideal for storage, or potentially could be converted into a summerhouse. Upstairs comprises three bedrooms with the master bedroom having access to an en-suite with an enclosed shower unit.

This home oozes with natural light throughout and is neutrally decorated with high spec renovations making it ideal for the new owners to move straight into! Additional benefits include gas central heating, updated electrics (re-wiring), double glazing, side-access to the garden, free on-street parking, and further potential to extend into the loft (STPP).

Abbey Road is superbly located with plenty of local amenities nearby and great choice of schools! There is a large Asda supermarket and B&Q along the road. Nuxley Village (0.7m) offers a range of shops which includes coffee shops, cafes, boutique stores, takeaways, and a local Co-op. There is also a great choice of parks to enjoy nearby with Frank’s park or Lesnes Abbey Woods which host events and has interesting history of being an important site for early Tertiary fossils. For commuters, Belvedere is 0.6m walk which operates the Southeastern Line into London Bridge and is one stop away from Abbey Wood Railway (Also a 0.9m walk or hop on the 229 bus along the road) with the new Elizabeth Line which has even more options into the city, fast and frequently!

We expect this house to be a popular choice, please give us a call to arrange a viewing or ask any questions on 01322 478333.

Talk to Arikson Franco from Acorn (Estate agents in Belvedere)

 

Use our calculator to work out potential mortgage repayments and stamp duty costs. Please note, these calculators are for general interest only and must not be relied on. Speak to our Mortgage Scout team for further information and advice. 

Powered by

Total Mortgage

£

Estimated Monthly Mortgage Payment

£

  • Powered by

Belvedere Area Guide

Explore the areas we serve – from parks, entertainment and transport links, to shopping, eating and drinking.

Dive into property knowledge

Visit the AcornIntel knowledge-base, our library of articles to help you make sense of all things property, or send your questions to our panel of property experts.

Get your property valued

Looking to sell or let your property? Get a free property valuation from one of our experts.

Top