The Acorn Group is London’s largest multi-brand estate agency. We offer our clients the best brands, with the best people, in the best locations.

 

Close

OIEO £1,175,000 freehold

Detached House for sale - The Avenue, BR4

Langford Russell are delighted to present this impressive five-bedroom detached family home.

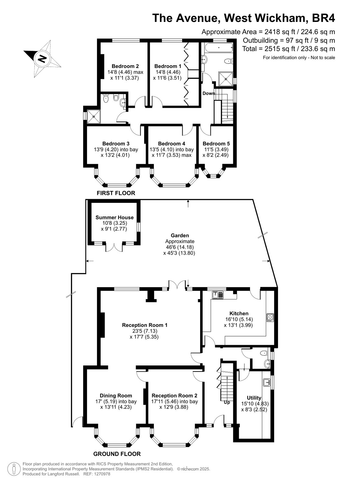
Internally the property comprises of, spacious hallway, reception room with bespoke handmade wall panelling and air conditioning, expansive principal reception with dining featuring double doors leading to the rear garden, guest WC, utility room with ample storage and large kitchen with high gloss handless units, direct access to the garden, stone countertops and integrated appliances. The upstairs accommodation comprises of five spacious bedrooms four of which are double bedrooms, and two fully tiled four-piece family bathrooms.

Externally the property offers, carriage driveway with off street parking for at least five cars, side access, private rear garden mainly laid to lawn with low maintenance artificial grass, timber frame pergola, timber outbuilding with power. Other benefits include incredible views over Langley Park Golf Course and further potential to extend (STPP).

The Avenue is a popular residential road within close proximity to West Wickham High Street, as well as West Wickham Rail Station – serving direct links into London Bridge, London Cannon Street and Charing Cross. The property is also in the catchment for Oak Lodge Primary School, Hawes Down Primary and Langley Park Secondary schools.

Tenure - Freehold | Council Tax Band - G | Energy Efficiency Rating - D

Talk to Steven Mullins from Langford Russell (Estate agents in West Wickham)

 

Use our calculator to work out potential mortgage repayments and stamp duty costs. Please note, these calculators are for general interest only and must not be relied on. Speak to our Mortgage Scout team for further information and advice. 

Powered by

Total Mortgage

£

Estimated Monthly Mortgage Payment

£

  • Powered by

West Wickham Area Guide

Explore the areas we serve – from parks, entertainment and transport links, to shopping, eating and drinking.

Dive into property knowledge

Visit the AcornIntel knowledge-base, our library of articles to help you make sense of all things property, or send your questions to our panel of property experts.

Get your property valued

Looking to sell or let your property? Get a free property valuation from one of our experts.

Top