The Acorn Group is London’s largest multi-brand estate agency. We offer our clients the best brands, with the best people, in the best locations.

 

Close

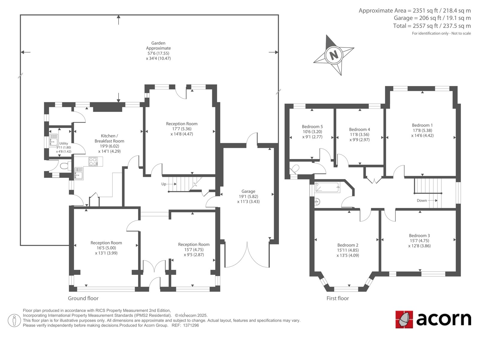
Asking price £1,800,000 freehold

Detached House for sale - Lowther Hill, SE23

Acorn are delighted to bring to market on one of Honor Oak’s most desirable roads, this charming Edwardian five-bedroom detached home on Lowther Hill offers generous living space, period features, and the rare benefit of backing directly onto a private residents only park. Offered to the market chain free, the property spans over 2,557 sqft / 237.5sqm combines character, comfort, and exciting potential.

Inside, the house features three spacious reception rooms, a large kitchen/breakfast room, utility area, and downstairs WC. Beautiful period touches such as bay windows, decorative fireplaces, and original flooring bring warmth and charm throughout. Upstairs, there are five well-proportioned bedrooms and a bright family bathroom, with peaceful views over the garden and park beyond.

The generous rear garden opens directly onto a private, gated park shared only with neighbouring residents. This unique green space not only offers peace and privacy but also hosts seasonal events such as end-of-summer picnics, Guy Fawkes night celebrations, tennis tournaments, and community entertainment evenings fostering a friendly, vibrant neighbourhood atmosphere. Tennis courts and open green space make it perfect for both relaxation and recreation.

The property also benefits from approved planning permission to extend and convert the existing garage into a self-contained annex, ideal for guest accommodation, rental income, or a home office.

With excellent transport links from Honor Oak Park station, outstanding schools nearby, and a welcoming local community, this is a rare opportunity to secure a substantial family home with a truly unique outlook and lifestyle in SE23.

Talk to Nellie Fantham from Acorn (Estate agents in Forest Hill)

 

Use our calculator to work out potential mortgage repayments and stamp duty costs. Please note, these calculators are for general interest only and must not be relied on. Speak to our Mortgage Scout team for further information and advice. 

Powered by

Total Mortgage

£

Estimated Monthly Mortgage Payment

£

  • Powered by

Forest Hill Area Guide

Explore the areas we serve – from parks, entertainment and transport links, to shopping, eating and drinking.

Dive into property knowledge

Visit the AcornIntel knowledge-base, our library of articles to help you make sense of all things property, or send your questions to our panel of property experts.

Get your property valued

Looking to sell or let your property? Get a free property valuation from one of our experts.

Top