The Acorn Group is London’s largest multi-brand estate agency. We offer our clients the best brands, with the best people, in the best locations.

 

Close

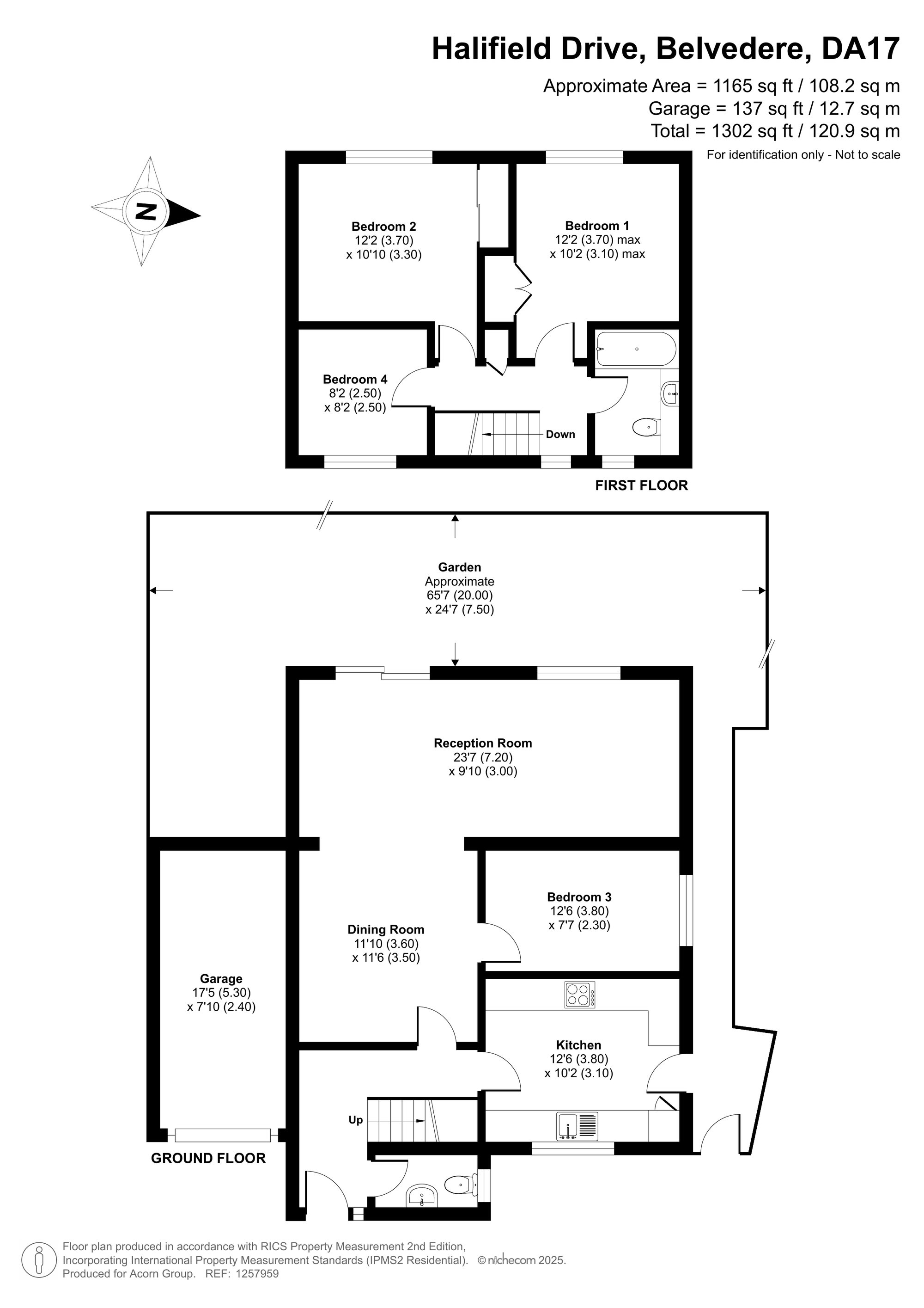
Guide price £550,000 freehold

Detached House for sale - Halifield Drive, DA17

** GUIDE PRICE £550,000 - £575,000 **

A stunning detached house located on the cusp of Abbey Wood; the accommodation offers an impressive 1165sqft of floorspace and has been beautifully renovated throughout. You’ll firstly enter the enclosed porch area which has a handy downstairs w/c on the right, further along past the stairs is the impressive kitchen which has a sleek modern design with matching grey units complimented with white-worktops and has plenty of worktop space with some integrated appliances. You’ll then enter the huge L-shaped through-longue which has been extended to allow for a generous downstairs bedroom, The reception room is a great space comfortably fitting large sofas and overlooks the beautifully landscaped garden. The garden is certainly a selling point of this home which wraps around this detached home offering loads of potential for further extension (STPP) with an extensive side plot, and a suntrap throughout the day to enjoy some get-togethers and throw a barbeque!

Upstairs offers a more traditional layout with access to three good size bedrooms all neutrally decorated with two rooms having built-in storage, and a stylish modern bathroom suite complimented with tiled walls and floor. This home is ideal for anyone looking to move straight into being well presented throughout and has tons of potential with a versatile layout to suit your style of living. Additional benefits include double glazing, gas central heating, updated electrics, single garage alongside and off-street parking for several cars.

Halifield Drive is well located for amenities with Nuxley Village nearby offering a range of shops which includes coffee shops, cafes, boutique stores, takeaways, and a local Co-op/Sainsbury. An ideal area for families with plenty of schools to choose form and a great choice of parks to enjoy nearby with Lesnes Abbey Woods across the main road which host events and has plenty of history in being an important site for early Tertiary fossils. For commuters Abbey Wood Station is just 0.6m walk (or hop on 229 bus along Abbey Road) which operates the Southeastern & Thameslink line as well as the brand-new Elizabeth Line which has even more options into the city, fast and frequently!

We expect this home to be a popular choice, please call our office on 01322478333 to arrange a viewing or ask any questions.

London Borough of Bexley - Council Tax Band - D
Energy Efficiency Rating - C

Talk to Arikson Franco from Acorn (Estate agents in Belvedere)

 

Use our calculator to work out potential mortgage repayments and stamp duty costs. Please note, these calculators are for general interest only and must not be relied on. Speak to our Mortgage Scout team for further information and advice. 

Powered by

Total Mortgage

£

Estimated Monthly Mortgage Payment

£

  • Powered by

Belvedere Area Guide

Explore the areas we serve – from parks, entertainment and transport links, to shopping, eating and drinking.

Dive into property knowledge

Visit the AcornIntel knowledge-base, our library of articles to help you make sense of all things property, or send your questions to our panel of property experts.

Get your property valued

Looking to sell or let your property? Get a free property valuation from one of our experts.

Top