The Acorn Group is London’s largest multi-brand estate agency. We offer our clients the best brands, with the best people, in the best locations.

 

Close

Guide price £450,000 freehold

Detached House for sale - Edwards Road, DA17

** Guide Price £450,000 - £475,000 **

MORE PHOTOS DUE SOON

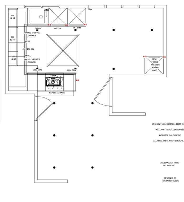
A rare opportunity to acquire this newly built house with a 10-year warranty included! This family home offers an open plan living space with a handy downstairs w/c! The garden is a great size and has been landscaped with a recently laid lawn. The first floor offers access to two double bedrooms and a stylish bathroom suite (due to be installed). The owners have extended into the loft to create a third double bedroom which offers plenty of space. This family home has been well decorated throughout and will be ready for new owners to move into straight away with no chain attached! There is some additional benefits including solar panels (huge savings on energy bills), double glazing, street parking.

Edward Road is well located for schools with great choice of primary schools locally. There is a variety of shops and takeaways by Belvedere Station (only 0.3m walk) with a large Asda Supermarket & B&Q. Alternatively, Nuxley Village nearby has even more choice with coffee shops, cafes, boutique stores and takeaways. There is a lot of parks to enjoy locally with Lesnes Abbey Woods which host events throughout the year and has interesting history of being an important site for early Tertiary fossils. For commuters, you also have access to Abbey Wood (following stop from Belvedere) operating the new Elizabeth Line offering a variety of options into the city, fast and frequently!

We expect this property to be a popular choice so please call our office on 01322 478 333 to arrange a viewing or ask any questions before it’s too late!

London Borough of Bexley - Council Tax Band - C
Energy Efficiency Rating - TBC

Talk to Arikson Franco from Acorn (Estate agents in Belvedere)

 

Use our calculator to work out potential mortgage repayments and stamp duty costs. Please note, these calculators are for general interest only and must not be relied on. Speak to our Mortgage Scout team for further information and advice. 

Powered by

Total Mortgage

£

Estimated Monthly Mortgage Payment

£

  • Powered by

Belvedere Area Guide

Explore the areas we serve – from parks, entertainment and transport links, to shopping, eating and drinking.

Dive into property knowledge

Visit the AcornIntel knowledge-base, our library of articles to help you make sense of all things property, or send your questions to our panel of property experts.

Get your property valued

Looking to sell or let your property? Get a free property valuation from one of our experts.

Top