The Acorn Group is London’s largest multi-brand estate agency. We offer our clients the best brands, with the best people, in the best locations.

 

Close

Asking price £750,000 freehold

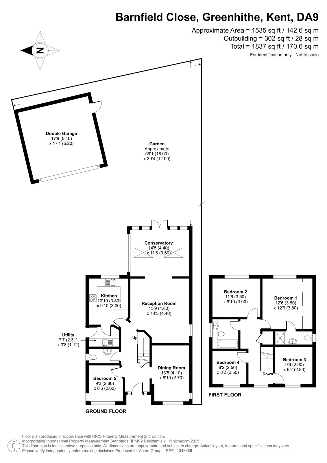
Detached House for sale - Barnfield Close, Kent, DA9

Acorn are delighted to welcome to the market this exquisite detached property, offering a perfect blend of luxury and comfort.

Boasting an extended five generously sized bedrooms, this home is ideal for families or those who love to entertain.
The property features a beautifully landscaped garden, perfect for enjoying outdoor gatherings or simply relaxing in a tranquil setting.
The conservatory/ extension provides a bright and airy space, built in air conditioning unit, which is ideal for enjoying the surrounding views all year round.

With off-street parking and a double garage, convenience is ensured for up to 6 vehicles.

This property is a true gem, offering a peaceful retreat while still being within easy reach of local amenities and transport links. Don't miss the opportunity to make this stunning property your new home. Contact us today to arrange a viewing!

Freehold
Dartford Borough Council - Tax Band - F
Energy Efficiency Rating - C

Talk to Daniel Langiano from Acorn (Estate agents in Dartford)

 

Use our calculator to work out potential mortgage repayments and stamp duty costs. Please note, these calculators are for general interest only and must not be relied on. Speak to our Mortgage Scout team for further information and advice. 

Powered by

Total Mortgage

£

Estimated Monthly Mortgage Payment

£

  • Powered by

Dartford Area Guide

Explore the areas we serve – from parks, entertainment and transport links, to shopping, eating and drinking.

Dive into property knowledge

Visit the AcornIntel knowledge-base, our library of articles to help you make sense of all things property, or send your questions to our panel of property experts.

Get your property valued

Looking to sell or let your property? Get a free property valuation from one of our experts.

Top