The Acorn Group is London’s largest multi-brand estate agency. We offer our clients the best brands, with the best people, in the best locations.

 

Close

Guide price £575,000 freehold

Bungalow for sale - Hillbrow Road, BR1

Guide Price £575,000 - £600,000

Acorn are delighted to welcome to the market this unique property, located enviably on this sought after road in BR1.

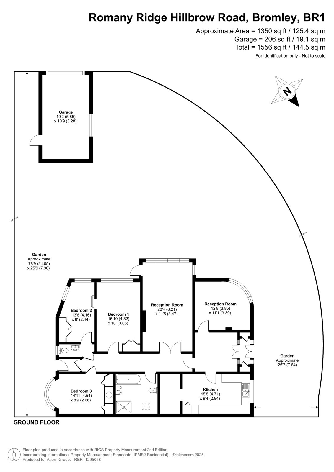
Offered with no onward chain and with oodles of potential, this detached bungalow offers approx 1400sq ft of internal living accommodation and comprises entrance hall, large fitted kitchen with ample units, study with front views, huge lounge with feature fire place, spacious bathroom, separate WC and three well proportioned bedrooms.

Externally, there is a wraparound lawned garden with detached garage. To the side of the property is a stairwell that leads to full length roof terrace with secure storage.

In need of TLC, the Bungalow provides ample space as it is currently set, but does provide the potential to extend above subject to local planning permission.

Ravensbourne Rail Station is within a short walk, as well as the picturesque Beckenham Place Park.

Talk to Jake Blackman from Acorn (Estate agents in Grove Park)

 

Use our calculator to work out potential mortgage repayments and stamp duty costs. Please note, these calculators are for general interest only and must not be relied on. Speak to our Mortgage Scout team for further information and advice. 

Powered by

Total Mortgage

£

Estimated Monthly Mortgage Payment

£

  • Powered by

Grove Park Area Guide

Explore the areas we serve – from parks, entertainment and transport links, to shopping, eating and drinking.

Dive into property knowledge

Visit the AcornIntel knowledge-base, our library of articles to help you make sense of all things property, or send your questions to our panel of property experts.

Get your property valued

Looking to sell or let your property? Get a free property valuation from one of our experts.

Top