The Acorn Group is London’s largest multi-brand estate agency. We offer our clients the best brands, with the best people, in the best locations.

 

Close

Guide price £450,000 freehold

Bungalow for sale - Fairmont Close, DA17

** GUIDE PRICE £450,000 - £460,000 **

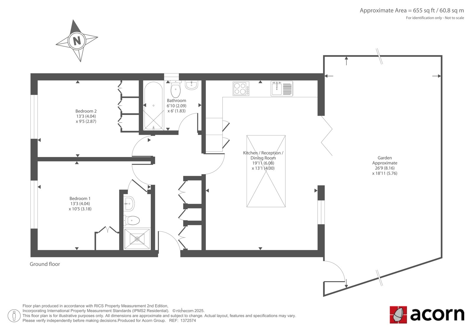
We’re thrilled to present to the market this newly built detached bungalow located in the sought after Nuxley Village, the accommodation offers a total 655sqft of floorspace with off street parking for two/three cars!

As you enter, you’ll find some bespoke built-in storage on the righthand side which then leads into the master bedroom on the opposite side. The master bedroom benefits from a built-in wardrobe, a stylish en-suite shower room which is beautifully designed with marble effect tiling across the walls and fitted LED Mirror cabinet.

Next is the second bedroom which is an equal size also benefiting from built-in wardrobes to utilise the rest of the space well. The family bathroom suite is also stylishly designed this time with a stone-effect tilling across the walls and fitted with modern white-gloss units, a smart LED mirror and a wall niche. The open plan reception room is an inviting space with an L-shaped kitchen along the wall fitted with some integrated appliances.

This room oozes with natural light with the roof lantern and Bi-folding doors leading out to the private garden area. The landscaped garden is well thought out with a patio terrace connecting the reception room by opening the Bi-folding doors to enjoy throughout summer, an ideal spot for some garden furniture; whilst there is artificial grass section surrounding the terrace making it easy to maintain year round. Additional benefits in this home includes off street parking, a bonus garden space to the front and unlived having been newly built.

Fairmont Close is located within a sought-after area in Nuxley Village, Belvedere. Ideally located for amenities with a range of shops which includes coffee shops, cafes, boutique stores, takeaways, medical centre, and a local Sainsburys & Co-Op. There is also a great choice of parks to enjoy nearby with Belvedere Recreation Grounds, Frank’s Park or Lesnes Abbey Woods which host events and has plenty of history in being an important site for early Tertiary fossils.

For commuters, you can get a bus from Woolwich Road nearby directly to Abbey Wood Railway which operates the Thameslink & Southeastern Line as well as the new Elizabeth Line which has even more options into the city, fast and frequently! Bexleyheath shopping centre is also within an easy reach with the 422 bus on Bedonwell Road (nearby) heading directly there, there is even more choice in Bexleyheath with a selection of restaurants, bars, pubs, cinema, bowling alley and Danson Park to enjoy with family and friends.

London Borough of Bexley - Council Tax Band - B
Energy Efficiency Rating - C

Talk to Arikson Franco from Acorn (Estate agents in Belvedere)

 

Use our calculator to work out potential mortgage repayments and stamp duty costs. Please note, these calculators are for general interest only and must not be relied on. Speak to our Mortgage Scout team for further information and advice. 

Powered by

Total Mortgage

£

Estimated Monthly Mortgage Payment

£

  • Powered by

Belvedere Area Guide

Explore the areas we serve – from parks, entertainment and transport links, to shopping, eating and drinking.

Dive into property knowledge

Visit the AcornIntel knowledge-base, our library of articles to help you make sense of all things property, or send your questions to our panel of property experts.

Get your property valued

Looking to sell or let your property? Get a free property valuation from one of our experts.

Top