The Acorn Group is London’s largest multi-brand estate agency. We offer our clients the best brands, with the best people, in the best locations.

 

Close

Offers Over £450,000 shareOfFreehold

Apartment for sale - Stockwell Road, SW9

A large characterful Lower ground floor period apartment with own front door and direct access to a large communal garden, moments from Stockwell underground station.

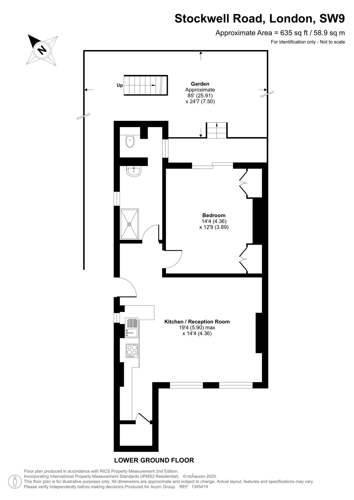
This period apartment is full of character and charm and briefly consists of large entrance hallway with smart shower-room with stylish walk in shower. A bright double bedroom with high ceilings, Generous Living room with a wood burner, beautiful flooring, large windows complete with semi open plan kitchen, which still, gives a good feel of separation.

The property has direct access to the large communal garden, is complete with no chain and has the added benefit of a share of freehold tenure.

Stockwell station is a stone’s throw providing great access to central London via both the Northern and Victoria lines. Excellent local pubs and coffee shops create a community feel, whilst Brixton is also just a short walk away with many more shops, restaurants and theatres.

Share of Freehold: 999 years from and including 1 January 2018 | Ground Rent: £0pa | Service Charge: £2100pa | Council Tax: C | EPC Rating: D

Talk to Jack Davies from Acorn (Estate agents in Kennington)

 

Use our calculator to work out potential mortgage repayments and stamp duty costs. Please note, these calculators are for general interest only and must not be relied on. Speak to our Mortgage Scout team for further information and advice. 

Powered by

Total Mortgage

£

Estimated Monthly Mortgage Payment

£

  • Powered by

Kennington Area Guide

Explore the areas we serve – from parks, entertainment and transport links, to shopping, eating and drinking.

Dive into property knowledge

Visit the AcornIntel knowledge-base, our library of articles to help you make sense of all things property, or send your questions to our panel of property experts.

Get your property valued

Looking to sell or let your property? Get a free property valuation from one of our experts.

Top