The Acorn Group is London’s largest multi-brand estate agency. We offer our clients the best brands, with the best people, in the best locations.

 

Close

Guide price £400,000 leasehold

Apartment - Plaistow Lane, BR1

*Guide Price £400,000 to £425,000*

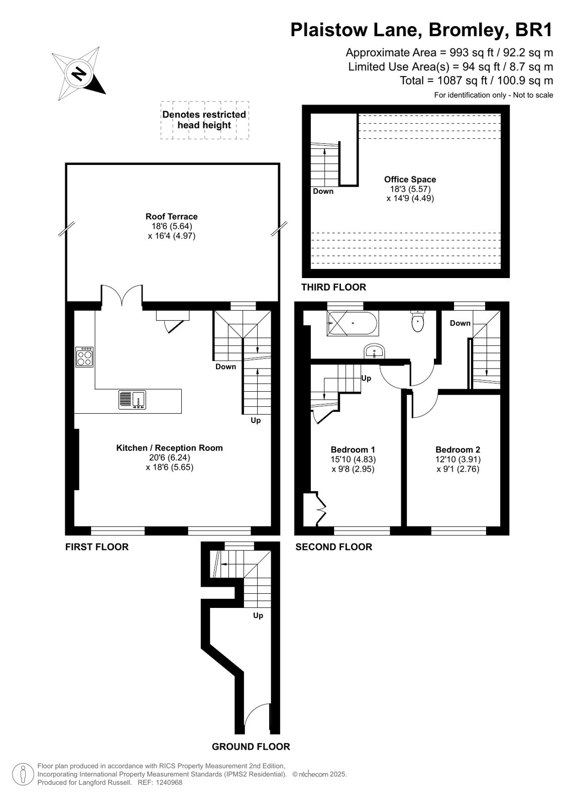
Offered to the market in pristine condition is this spacious two split level apartment with direct access to a roof terrace, located in popular Sundridge Park.

The property benefits from its own front door and porch area to the ground floor, leading up the first flight of stairs into the spacious open plan kitchen/living room with access to a private outdoor roof terrace with resin bound flooring and hedging. The open plan layout of this area makes it an ideal entertainment space and features an exposed internal brick wall (original yellow stock bricks), vintage wall-mounted lighting, crittall style double doors, large box sash windows and Amtico herringbone flooring. The bespoke kitchen has all integrated appliances, marble effect quartz worktop which creates a grand breakfast bar with integrated USB charging points.

A further flight of stairs surrounded by bespoke safety glass takes you to the master bedroom and a further double bedroom with great views. On the same floor you have the main bathroom which includes a wet-room shower, bath with handheld showering facilities, WC and basin all with gold accessories complimenting the white marble surrounding tiles. The stairs in the master bedroom lead to a mezzanine floor ideal for use as a dressing room or storage.

Sundridge Park is 0.1 miles away providing services into London Bridge, Cannon Street and Charing Cross via Grove Park. Sundridge Park Village offers a selection of quaint coffee shops and other local amenities. Bromley town centre is located within 0.5 mile offering a further array of shops, The Glades shopping centre, large selection of restaurants and new nine screen cinema complex.

Tenure - Leasehold
Lease Length - 949 Years
Ground Rent - Peppercorn

Energy Efficiency Rating D | Council Tax London Borough Of Bromley Band C

Talk to Jake Fahey from Langford Russell (Estate agents in Bromley)

 

Use our calculator to work out potential mortgage repayments and stamp duty costs. Please note, these calculators are for general interest only and must not be relied on. Speak to our Mortgage Scout team for further information and advice. 

Powered by

Total Mortgage

£

Estimated Monthly Mortgage Payment

£

  • Powered by

Bromley Area Guide

Explore the areas we serve – from parks, entertainment and transport links, to shopping, eating and drinking.

Dive into property knowledge

Visit the AcornIntel knowledge-base, our library of articles to help you make sense of all things property, or send your questions to our panel of property experts.

Get your property valued

Looking to sell or let your property? Get a free property valuation from one of our experts.

Top