The Acorn Group is London’s largest multi-brand estate agency. We offer our clients the best brands, with the best people, in the best locations.

 

Close

Guide price £400,000 shareOfFreehold

Apartment - Park Avenue, BR1

Guide Price: £400,000 to £425,000

Acorn are delighted to welcome to the market this immaculate and bright ground floor Conversion flat, set within this characterful building.

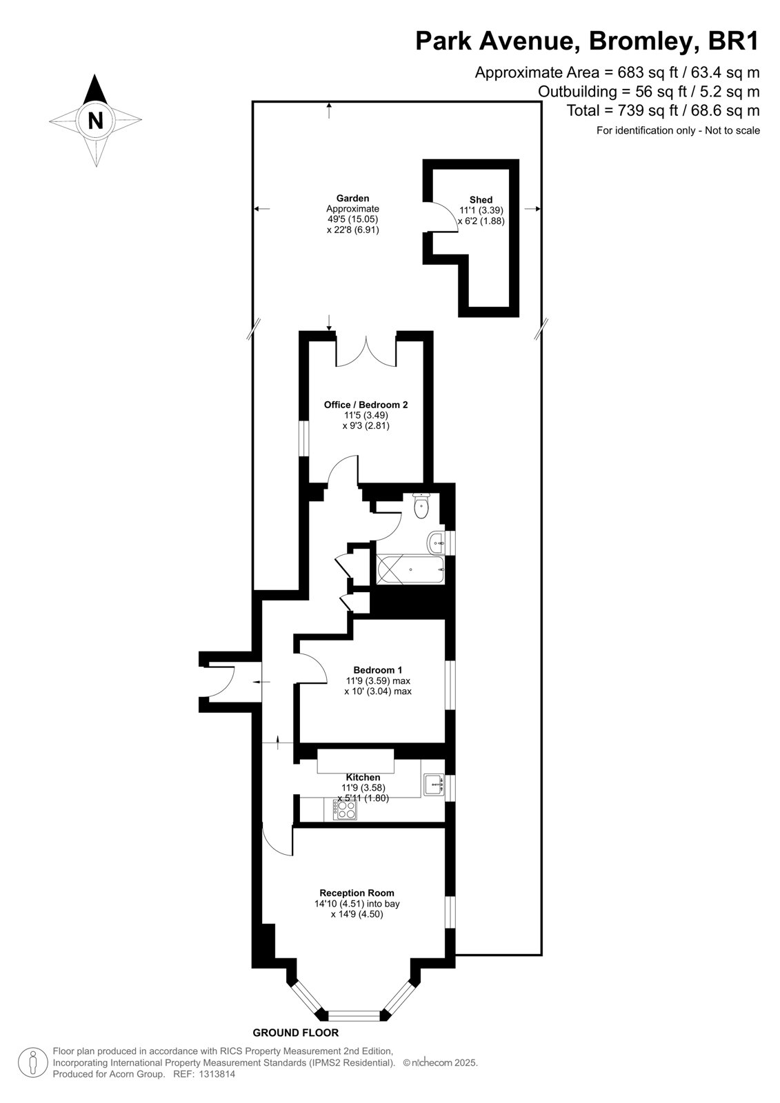
Offered with a Share of the Freehold, this flat boasts a large rear garden and off street parking.

Internally the accommodation comprises a large front lounge with bay window, modern fitted kitchen with ample units and integrated appliances, well appointed bathroom, and two well proportioned double bedrooms. Bedroom 2 offers direct access onto the rear garden by way of double doors.

Located within a few minutes’ walk of Sundridge Park Station, this garden flat would make an ideal first time purchase.

Lease - 962 Years
London Borough of Bromley - Council Tax Band - D
Energy Efficiency Rating - D

Talk to Jake Blackman from Acorn (Estate agents in Grove Park)

 

Use our calculator to work out potential mortgage repayments and stamp duty costs. Please note, these calculators are for general interest only and must not be relied on. Speak to our Mortgage Scout team for further information and advice. 

Powered by

Total Mortgage

£

Estimated Monthly Mortgage Payment

£

  • Powered by

Grove Park Area Guide

Explore the areas we serve – from parks, entertainment and transport links, to shopping, eating and drinking.

Dive into property knowledge

Visit the AcornIntel knowledge-base, our library of articles to help you make sense of all things property, or send your questions to our panel of property experts.

Get your property valued

Looking to sell or let your property? Get a free property valuation from one of our experts.

Top