The Acorn Group is London’s largest multi-brand estate agency. We offer our clients the best brands, with the best people, in the best locations.

 

Close

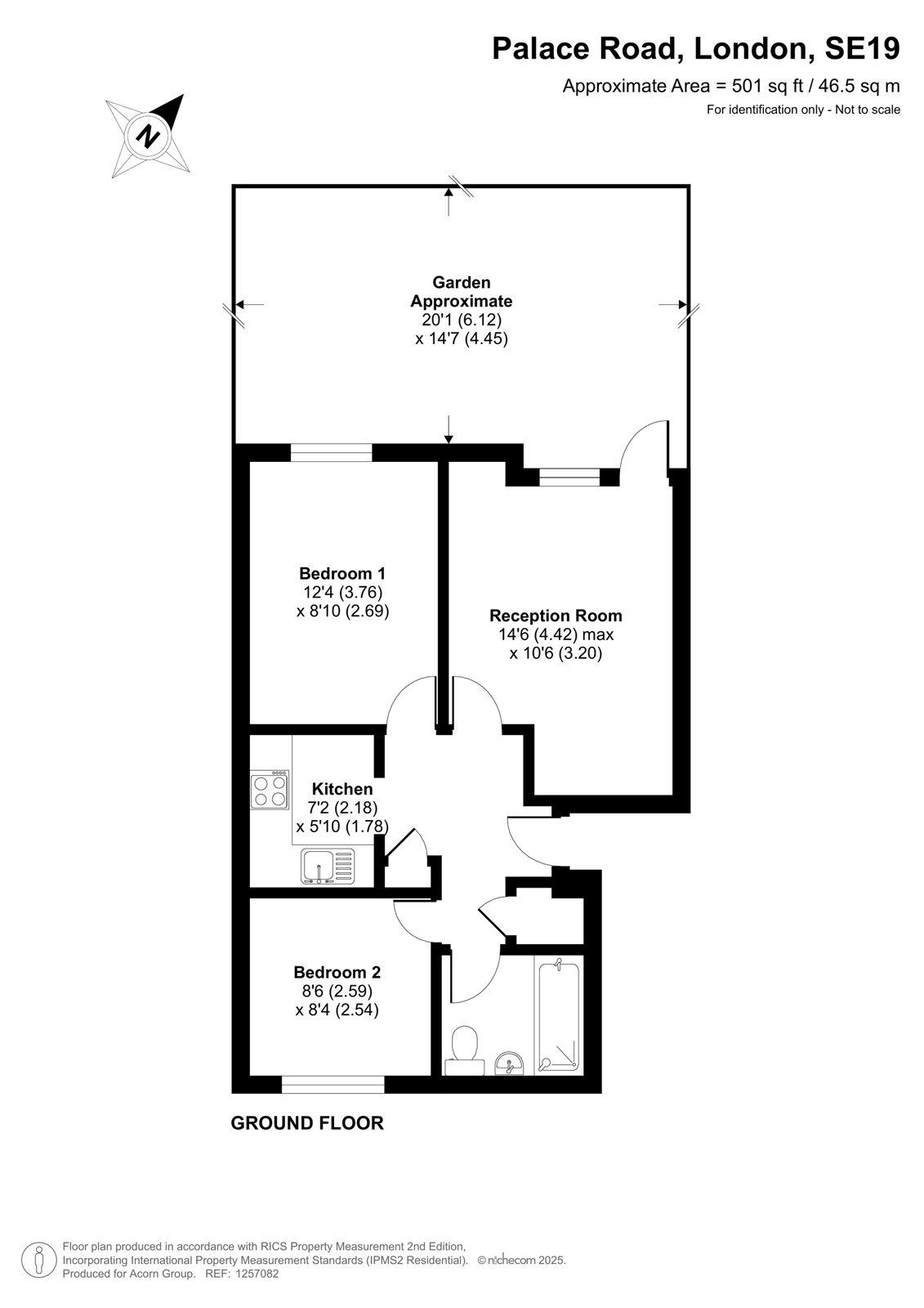
OIEO £365,000 leasehold

Apartment for sale - Palace Road, SE19

This beautifully presented 2-bedroom flat offers a bright and spacious reception room, perfect for both relaxing and dining. The property also boasts a lovely West facing private garden, providing a peaceful outdoor space. The separate, fully equipped kitchen is ideal for home cooking, and the stylish bathroom completes the modern living experience.

Location
Situated just moments from Crystal Palace Station, this property offers easy access to transport links. Residents will enjoy the vibrant atmosphere of Crystal Palace, with an array of shops, bars, cafes, and restaurants within easy reach. Additionally, the expansive green spaces of Crystal Palace Park are nearby, offering the perfect spot for outdoor activities.

Get in touch to book a viewing.

Lease Length: 120 Years
Annual Service Charge: £780
Annual Ground Rent: £100
Council Tax Band: B
Energy Efficiency Rating: C

Talk to George Liney from Acorn (Estate agents in Crystal Palace)

 

Use our calculator to work out potential mortgage repayments and stamp duty costs. Please note, these calculators are for general interest only and must not be relied on. Speak to our Mortgage Scout team for further information and advice. 

Powered by

Total Mortgage

£

Estimated Monthly Mortgage Payment

£

  • Powered by

Crystal Palace Area Guide

Explore the areas we serve – from parks, entertainment and transport links, to shopping, eating and drinking.

Dive into property knowledge

Visit the AcornIntel knowledge-base, our library of articles to help you make sense of all things property, or send your questions to our panel of property experts.

Get your property valued

Looking to sell or let your property? Get a free property valuation from one of our experts.

Top