The Acorn Group is London’s largest multi-brand estate agency. We offer our clients the best brands, with the best people, in the best locations.

 

Close

Asking price £785,000 shareOfFreehold

Apartment for sale - Mavelstone Road, BR1

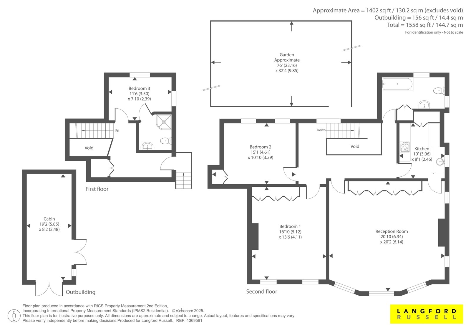
A rare opportunity to purchase a substantial split level first and second floor flat within this imposing locally listed building in the Mavelstone Road Conservation area. Benefiting from a wealth of character with large, elegant rooms, many original features, private garden, garden room/office space and allocated off street parking.

Located to the side of this imposing residence and accessed via its own private entrance leading to an internal entrance hallway with fitted storage. From here you have access to bedroom three with modern en-suite shower room and the original ornate staircase which will take you to the second-floor landing which is overlooked by large sash windows and grand chandelier hanging over. The second-floor landing gives access to two double bedrooms both with fitted wardrobes and ornate cornice and the master with built in window seat and ornate fireplace. The main bathroom is beautifully presented with marble tiling; the utility cupboard is also cleverly placed here. There is a dual aspect lounge with three large sash windows facing over the front elevation with two built in windows seats below, it has the original dresser along the far wall offering ample storage and fireplace with gas flame affect fire. This leads through to a modern fitted kitchen with quartz worksurface and hidden pantry.

Externally the property offers its own private rear garden, a timber built garden room with power and light which could be used as a home office/gym or games room and a further storage room is offered beneath the main building ideal for garden furniture storage or bikes.

Ideally placed for Elmstead Woods (0.5m), Chislehurst (0.7m) and Bickley stations (0.7m), Chislehurst village is just 1.5 miles away and motorway access is also close by for the A20/A2/M25.The property is also conveniently located for sought after schools including Bullers Wood, Bromley High, Breaside and Eltham College.

Tenure - SOFH
Lease Length - 999 Years from 1st April 2023
Service Charge - TBC
Ground Rent - TBC
Council Tax Band - F
Energy Efficiency Rating - D

Talk to Robert Keeble from Langford Russell (Estate agents in Chislehurst)

 

Use our calculator to work out potential mortgage repayments and stamp duty costs. Please note, these calculators are for general interest only and must not be relied on. Speak to our Mortgage Scout team for further information and advice. 

Powered by

Total Mortgage

£

Estimated Monthly Mortgage Payment

£

  • Powered by

Chislehurst Area Guide

Explore the areas we serve – from parks, entertainment and transport links, to shopping, eating and drinking.

Dive into property knowledge

Visit the AcornIntel knowledge-base, our library of articles to help you make sense of all things property, or send your questions to our panel of property experts.

Get your property valued

Looking to sell or let your property? Get a free property valuation from one of our experts.

Top