The Acorn Group is London’s largest multi-brand estate agency. We offer our clients the best brands, with the best people, in the best locations.

 

Close

Asking price £425,000 shareOfFreehold

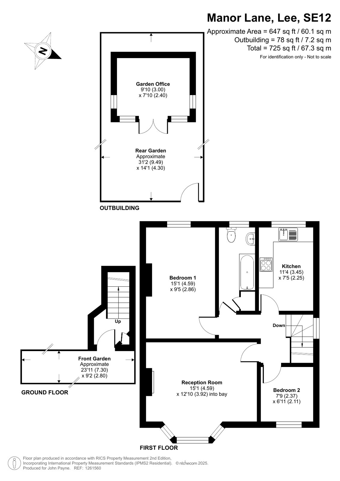
Apartment for sale - Manor Lane, SE12

A charming two-bedroom first-floor Victorian garden flat within the Lee Manor Conservation area. Positioned close to both Lee and Hither Green railway stations, a short distance to the Docklands Light Railway, as well as many bus routes, the flat has good transport links to London and surrounding areas.

It is also well placed for all three Brindishe primary schools, local amenities, the lovely Manor House Gardens, and is a pleasant walkable distance to Blackheath and historic Greenwich.

The property benefits from a fitted kitchen, bathroom, lounge and two good-sized bedrooms. There is a delightful, secluded private garden that enjoys a south-facing aspect and an office/summerhouse. Viewing is a must. Chain free.

Lewisham London Borough Council - Counciul Tax Band - C
Energy Efficiency Rating - C

Talk to Chris Wadeson from John Payne (Estate agents in Lee)

 

Use our calculator to work out potential mortgage repayments and stamp duty costs. Please note, these calculators are for general interest only and must not be relied on. Speak to our Mortgage Scout team for further information and advice. 

Powered by

Total Mortgage

£

Estimated Monthly Mortgage Payment

£

  • Powered by

Lee Area Guide

Explore the areas we serve – from parks, entertainment and transport links, to shopping, eating and drinking.

Dive into property knowledge

Visit the AcornIntel knowledge-base, our library of articles to help you make sense of all things property, or send your questions to our panel of property experts.

Get your property valued

Looking to sell or let your property? Get a free property valuation from one of our experts.

Top