The Acorn Group is London’s largest multi-brand estate agency. We offer our clients the best brands, with the best people, in the best locations.

 

Close

Guide price £550,000 leasehold

Apartment for sale - Major Draper Street, SE18

*GUIDE PRICE £550,000-£575,000* John Payne are pleased to bring to the SE18 market this two bedroom Grade II listed apartment in the heart of the renowned Royal Arsenal. Located only seconds away from the Elizabeth Line and the fantastic amenities of Woolwich this property is not to be missed.

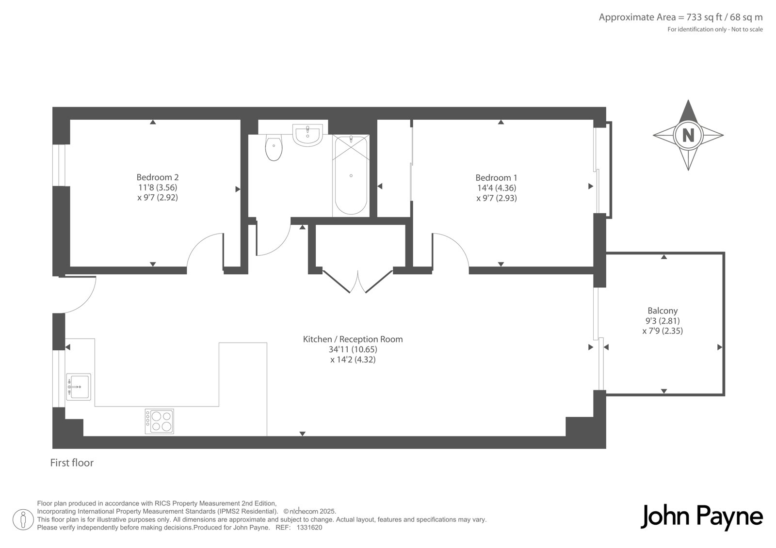
The property comprises: two double bedrooms, the master with built in wardrobes and Juliette balcony. There is a spacious 34ft open plan kitchen/living room with a modern fully integrated high spec white kitchen to include a full-size dishwasher. There is a storage cupboard for utilities and a modern three-piece bathroom to complete the apartment.

The apartment has access to The Waterside Club which includes a resident only gym with state-of-the-art fitness equipment, vitality spa pool and a 20-metre swimming pool, sauna and steam room, treatment rooms, private cinema, and 24-hour concierge and security. There are a number of residents' sports societies and the Thames Path provides running (Park Run starts 2 minutes away every Saturday morning) and cycling routes to Greenwich & London Bridge, or, alternatively, out to Kent.

The Royal Arsenal functioned for nearly 500 years, manufacturing weapons, large firearms and tanks, as well as supplying ammunition and other armaments. A small Gunwharf was established in Woolwich in July 1518 for the equipping of newly constructed warships. Since then, Berkeley Homes have redeveloped the Arsenal converting old armouries into beautiful properties making this the perfect place to live.

Plenty of amenities are at your doorstep in Royal Arsenal. From gastro pubs (Dial Arch, Guard House, Salt) to cafes (Jade Boulangerie, Denna's), to gyms (the Yoga Space, 7R CrossFit gym), to the new cultural centres of Woolwich Works and Punch Drunk, it's the perfect place to set down roots.

This one is not to be missed, call us now on 0203 8610 555 to book your viewing today!

Lease Length – 992 Years Remaining
Service Charge - £4,535.55 PA
Ground Rent - £425 PA
Royal Borough of Greenwich - Tax Band D
Energy Efficiency Rating B

Talk to William Chidley from John Payne (Estate agents in Woolwich)

 

Use our calculator to work out potential mortgage repayments and stamp duty costs. Please note, these calculators are for general interest only and must not be relied on. Speak to our Mortgage Scout team for further information and advice. 

Powered by

Total Mortgage

£

Estimated Monthly Mortgage Payment

£

  • Powered by

Woolwich Area Guide

Explore the areas we serve – from parks, entertainment and transport links, to shopping, eating and drinking.

Dive into property knowledge

Visit the AcornIntel knowledge-base, our library of articles to help you make sense of all things property, or send your questions to our panel of property experts.

Get your property valued

Looking to sell or let your property? Get a free property valuation from one of our experts.

Top