The Acorn Group is London’s largest multi-brand estate agency. We offer our clients the best brands, with the best people, in the best locations.

 

Close

Asking price £450,000 shareOfFreehold

Apartment for sale - Lowther Hill, SE23

Set on the first floor of an attractive period building, this two bedroom apartment on Lowther Hill offers well-proportioned accommodation with a practical layout and plenty of natural light throughout also boasting communal outdoor space.

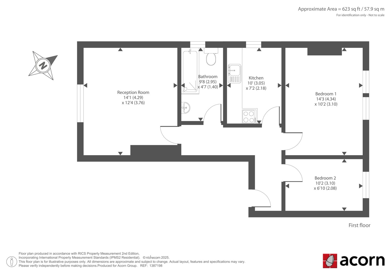
The reception room is a good size and comfortably arranged, with space for both seating and dining. Large windows draw in light and give the room an open feel, making it a pleasant everyday living space. The separate kitchen sits just off the hallway and is neatly fitted with solid cabinetry, good worktop space and room for appliances, keeping cooking and living areas nicely defined.

Both bedrooms are quietly positioned away from the main living space. The main bedroom is a generous double with ample room for wardrobes, while the second bedroom works well as a guest room, home office or nursery. The bathroom is centrally located and finished in a clean, modern style, with a full suite and window for natural ventilation.

The flat measures sits circa 623sq/ft internal floor space and benefits from a sensible hallway layout that avoids wasted space. Throughout, the property feels well maintained and ready to move into, while still offering scope for personalisation if desired.

Forest Hill is a popular South East London neighbourhood, known for its village feel, period architecture and strong sense of community. The area offers a good mix of independent cafés, restaurants and shops, along with everyday amenities, and is particularly well regarded for the open green spaces of Horniman Gardens.

Lowther Hill is a quiet residential street, made up largely of attractive period homes, and is well positioned for Forest Hill station, providing Overground and mainline services into London Bridge and the City. The location combines a peaceful setting with easy access to transport, green spaces and the amenities of SE23, making it a consistently sought-after place to live, this property also boasts access to private park and tennis courts.

Share of Freehold
Lease Length: 125 years from 25th March 1993
Service Charge: N/A
Ground Rent: N/A
Lewisham Council - Tax Band: B
Energy Efficiency Rating: C

Talk to Nellie Fantham from Acorn (Estate agents in Forest Hill)

 

Use our calculator to work out potential mortgage repayments and stamp duty costs. Please note, these calculators are for general interest only and must not be relied on. Speak to our Mortgage Scout team for further information and advice. 

Powered by

Total Mortgage

£

Estimated Monthly Mortgage Payment

£

  • Powered by

Forest Hill Area Guide

Explore the areas we serve – from parks, entertainment and transport links, to shopping, eating and drinking.

Dive into property knowledge

Visit the AcornIntel knowledge-base, our library of articles to help you make sense of all things property, or send your questions to our panel of property experts.

Get your property valued

Looking to sell or let your property? Get a free property valuation from one of our experts.

Top